Tuinstraat 117-1
Sfeervol, compleet en hoogwaardig gerenoveerd drielaags bovenhuis van 173 m2 in een rustige straat in de populaire Jordaan. De woning beschikt over een royale doorzon living, een luxe woonkeuken met riant kookeiland, vijf slaapkamers, twee badkamers, balkon en een waanzinnig dakterras op het zuiden.
De woning is met veel oog voor detail gerenoveerd en afgewerkt op een uitzonderlijk hoog niveau. De grote raampartijen zorgen voor een prachtige lichtinval en een ruimtelijk gevoel.
INDELING
Eigen entree op de begane grond, trap naar de eerste verdieping.
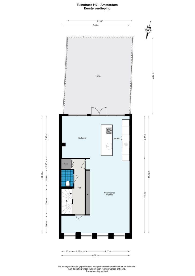
Eerste verdieping
Ruime hal met garderobe en een separate WC met fonteintje. U komt binnen in de royale doorzonwoonkamer, die door de raampartijen aan zowel de voor- als achterzijde een uitzonderlijk licht en ruimtelijk karakter heeft. De op maat gemaakte inbouwkasten geven de ruimte extra sfeer en functionaliteit. De luxe woonkeuken is uitgerust met een stijlvol kookeiland en hoogwaardige inbouwapparatuur, waaronder een Quooker-kraan, een wijnklimaatkast, een gaskookplaat met geïntegreerde afzuiging, twee ovens, een afwasmachine, een grote koelkast en een aparte vriezer. Het eetgedeelte grenst aan het waanzinnige dakterras van maar liefst 45 m2 op het zuiden, dat via de geheel te openen harmonicadeuren bereikbaar is, waardoor binnen en buiten naadloos in elkaar overlopen.
Tweede verdieping
Op de overloop bevindt zich een ingebouwde kast met ruimte voor een wasmachine en droger. Er is een separate WC met fonteintje. De master bedroom met op maat gemaakte inloopkast is gelegen aan de achterzijde en heeft een badkamer ensuite die beschikt over een ligbad, inloopdouche en wastafel. De openslaande deuren geven toegang tot het balkon gelegen op het zuiden. Aan de voorzijde is nog een goed bemeten slaapkamer gelegen.
Derde verdieping
Op deze verdieping bevinden zich drie slaapkamers. De badkamer is voorzien van ligbad, inloopdouche, dubbele wastafel en WC. Op de overloop geeft een vlizotrap toegang tot de vliering, perfect voor extra bergruimte. Hier bevindt zich de CV-ketel.
BIJZONDERHEDEN
Woonoppervlakte 173,0 m2 (conform NEN2580) + 56,8 m2 buitenruimte op het zuiden!
Vliering van 7,9 m2, bruto vloeroppervlakte is echter 29,1 m2!
Eigen grond!
Hoogwaardig gerenoveerd
Airconditioning aanwezig
Vijf slaapkamers
Twee badkamers
Energielabel A
OMGEVING
Deze unieke woning is gelegen in een rustige straat, midden in de geliefde Jordaan. Om de hoek vind je de Westerstraat, met een gevarieerd aanbod aan heerlijke winkels en supermarkten. Talrijke charmante restaurants, levendige cafés en uitnodigende terrassen liggen binnen handbereik. Verschillende wekelijkse markten, waaronder Lindengracht, Noordermarkt en Westerstraat, bieden mogelijkheden om heerlijke verse en lokale producten te kopen. Om de hoek van de woning is er een kinderspeeltuin. In deze levendige buurt zal je nooit verveling ervaren.
Het appartement is gemakkelijk bereikbaar met de auto vanaf de ringweg A-10 via afritten S100 en S114. Bus en tram halte Marnixplein ligt in de buurt, met de buslijn 88 en tram 5. Het Amsterdam Centraal Station ligt op slechts 9 minuten fietsen.
ALGEMEEN
Deze informatie is door ons met de nodige zorgvuldigheid samengesteld. Onzerzijds wordt echter geen enkele aansprakelijkheid aanvaard voor enige onvolledigheid, onjuistheid of anderszins, dan wel de gevolgen daarvan. Alle opgegeven maten en oppervlakten zijn indicatief. Koper heeft zijn eigen onderzoeksplicht naar alle zaken die voor hem of haar van belang zijn. Met betrekking tot deze woning is de makelaar adviseur van verkoper. Wij adviseren u een deskundige (NVM-)makelaar in te schakelen die u begeleidt bij het aankoopproces. Indien u specifieke wensen heeft omtrent de woning, adviseren wij u deze tijdig kenbaar te maken aan uw aankopend makelaar en hiernaar zelfstandig onderzoek te (laten) doen. Indien u geen deskundige vertegenwoordiger inschakelt, acht u zich volgens de wet deskundige genoeg om alle zaken die van belang zijn te kunnen overzien. Van toepassing zijn de NVM voorwaarden.
==========================================
Charming, fully and high-end renovated three-story apartment of 173 m² on a quiet street in the popular Jordaan district. The apartment features a spacious, light-filled living room, a luxurious kitchen-diner with a large island, five bedrooms, two bathrooms, a balcony, and a stunning south-facing roof terrace.
The apartment has been renovated with meticulous attention to detail and finished to an exceptionally high standard. The large windows provide beautiful natural light and a feeling of spaciousness.
LAYOUT
Private entrance on the ground floor, stairs to the first floor.
First Floor
Spacious hallway with a coat closet and a separate toilet with a hand basin. You enter the spacious, light-filled living room, which, thanks to the windows at both the front and rear, is exceptionally bright and spacious. The custom-made built-in wardrobes add to the space's ambiance and functionality. The luxurious kitchen/diner is equipped with a stylish cooking island and high-quality built-in appliances, including a Quooker tap, a wine cooler, a gas cooktop with integrated extractor hood, two ovens, a dishwasher, a large refrigerator, and a separate freezer. The dining area opens onto the stunning 45 m² south-facing roof terrace, accessible through fully opening concertina doors, seamlessly blending indoors and outdoors.
Second Floor
On the landing, there is a built-in closet with space for a washing machine and dryer. There is a separate toilet with a hand basin. The master bedroom, with a custom-made walk-in closet, is located at the rear of the property and has an ensuite bathroom with a bathtub, walk-in shower, and sink. French doors open onto the south-facing balcony. Another well-sized bedroom is located at the front.
Third Floor
This floor contains three bedrooms. The bathroom is equipped with a bathtub, walk-in shower, double sink, and toilet. On the landing, a loft ladder provides access to the attic, perfect for extra storage. The central heating boiler is located here.
SPECIAL FEATURES
Living area 173.0 m² (compliant with NEN2580) + 56.8 m² of south-facing outdoor space!
Attic of 7.9 m², but gross floor area is 29.1 m²!
Freehold land!
Highly renovated
Air conditioning available
Five bedrooms
Two bathrooms
Energy label A
AREA
This unique home is located on a quiet street in the heart of the popular Jordaan district. Westerstraat, with its diverse selection of wonderful shops and supermarkets, is just around the corner. Numerous charming restaurants, lively cafés, and inviting terraces are within easy reach. Several weekly markets, including Lindengracht, Noordermarkt, and Westerstraat, offer opportunities to buy delicious fresh and local produce. A children's playground is just around the corner. You'll never be bored in this lively neighborhood.
The apartment is easily accessible by car from the A-10 ring road via exits S100 and S114. The Marnixplein bus and tram stop is nearby, served by bus line 88 and tram 5. Amsterdam Central Station is only a 9-minute bike ride away.
GENERAL
This information has been compiled with due care. However, we accept no liability for any incompleteness, inaccuracy, or otherwise, or for the consequences thereof. All stated dimensions and surface areas are indicative. The buyer has the obligation to investigate all matters of importance to them. The real estate agent is acting as the seller's advisor regarding this property. We recommend that you engage a qualified (NVM) real estate agent to guide you through the purchasing process. If you have specific wishes regarding the property, we advise you to inform your purchasing agent in a timely manner and to conduct your own independent investigation. If you do not engage an expert representative, you are legally considered sufficiently knowledgeable to oversee all relevant matters. The NVM terms and conditions apply.
De woning is met veel oog voor detail gerenoveerd en afgewerkt op een uitzonderlijk hoog niveau. De grote raampartijen zorgen voor een prachtige lichtinval en een ruimtelijk gevoel.
INDELING
Eigen entree op de begane grond, trap naar de eerste verdieping.
Eerste verdieping
Ruime hal met garderobe en een separate WC met fonteintje. U komt binnen in de royale doorzonwoonkamer, die door de raampartijen aan zowel de voor- als achterzijde een uitzonderlijk licht en ruimtelijk karakter heeft. De op maat gemaakte inbouwkasten geven de ruimte extra sfeer en functionaliteit. De luxe woonkeuken is uitgerust met een stijlvol kookeiland en hoogwaardige inbouwapparatuur, waaronder een Quooker-kraan, een wijnklimaatkast, een gaskookplaat met geïntegreerde afzuiging, twee ovens, een afwasmachine, een grote koelkast en een aparte vriezer. Het eetgedeelte grenst aan het waanzinnige dakterras van maar liefst 45 m2 op het zuiden, dat via de geheel te openen harmonicadeuren bereikbaar is, waardoor binnen en buiten naadloos in elkaar overlopen.
Tweede verdieping
Op de overloop bevindt zich een ingebouwde kast met ruimte voor een wasmachine en droger. Er is een separate WC met fonteintje. De master bedroom met op maat gemaakte inloopkast is gelegen aan de achterzijde en heeft een badkamer ensuite die beschikt over een ligbad, inloopdouche en wastafel. De openslaande deuren geven toegang tot het balkon gelegen op het zuiden. Aan de voorzijde is nog een goed bemeten slaapkamer gelegen.
Derde verdieping
Op deze verdieping bevinden zich drie slaapkamers. De badkamer is voorzien van ligbad, inloopdouche, dubbele wastafel en WC. Op de overloop geeft een vlizotrap toegang tot de vliering, perfect voor extra bergruimte. Hier bevindt zich de CV-ketel.
BIJZONDERHEDEN
Woonoppervlakte 173,0 m2 (conform NEN2580) + 56,8 m2 buitenruimte op het zuiden!
Vliering van 7,9 m2, bruto vloeroppervlakte is echter 29,1 m2!
Eigen grond!
Hoogwaardig gerenoveerd
Airconditioning aanwezig
Vijf slaapkamers
Twee badkamers
Energielabel A
OMGEVING
Deze unieke woning is gelegen in een rustige straat, midden in de geliefde Jordaan. Om de hoek vind je de Westerstraat, met een gevarieerd aanbod aan heerlijke winkels en supermarkten. Talrijke charmante restaurants, levendige cafés en uitnodigende terrassen liggen binnen handbereik. Verschillende wekelijkse markten, waaronder Lindengracht, Noordermarkt en Westerstraat, bieden mogelijkheden om heerlijke verse en lokale producten te kopen. Om de hoek van de woning is er een kinderspeeltuin. In deze levendige buurt zal je nooit verveling ervaren.
Het appartement is gemakkelijk bereikbaar met de auto vanaf de ringweg A-10 via afritten S100 en S114. Bus en tram halte Marnixplein ligt in de buurt, met de buslijn 88 en tram 5. Het Amsterdam Centraal Station ligt op slechts 9 minuten fietsen.
ALGEMEEN
Deze informatie is door ons met de nodige zorgvuldigheid samengesteld. Onzerzijds wordt echter geen enkele aansprakelijkheid aanvaard voor enige onvolledigheid, onjuistheid of anderszins, dan wel de gevolgen daarvan. Alle opgegeven maten en oppervlakten zijn indicatief. Koper heeft zijn eigen onderzoeksplicht naar alle zaken die voor hem of haar van belang zijn. Met betrekking tot deze woning is de makelaar adviseur van verkoper. Wij adviseren u een deskundige (NVM-)makelaar in te schakelen die u begeleidt bij het aankoopproces. Indien u specifieke wensen heeft omtrent de woning, adviseren wij u deze tijdig kenbaar te maken aan uw aankopend makelaar en hiernaar zelfstandig onderzoek te (laten) doen. Indien u geen deskundige vertegenwoordiger inschakelt, acht u zich volgens de wet deskundige genoeg om alle zaken die van belang zijn te kunnen overzien. Van toepassing zijn de NVM voorwaarden.
==========================================
Charming, fully and high-end renovated three-story apartment of 173 m² on a quiet street in the popular Jordaan district. The apartment features a spacious, light-filled living room, a luxurious kitchen-diner with a large island, five bedrooms, two bathrooms, a balcony, and a stunning south-facing roof terrace.
The apartment has been renovated with meticulous attention to detail and finished to an exceptionally high standard. The large windows provide beautiful natural light and a feeling of spaciousness.
LAYOUT
Private entrance on the ground floor, stairs to the first floor.
First Floor
Spacious hallway with a coat closet and a separate toilet with a hand basin. You enter the spacious, light-filled living room, which, thanks to the windows at both the front and rear, is exceptionally bright and spacious. The custom-made built-in wardrobes add to the space's ambiance and functionality. The luxurious kitchen/diner is equipped with a stylish cooking island and high-quality built-in appliances, including a Quooker tap, a wine cooler, a gas cooktop with integrated extractor hood, two ovens, a dishwasher, a large refrigerator, and a separate freezer. The dining area opens onto the stunning 45 m² south-facing roof terrace, accessible through fully opening concertina doors, seamlessly blending indoors and outdoors.
Second Floor
On the landing, there is a built-in closet with space for a washing machine and dryer. There is a separate toilet with a hand basin. The master bedroom, with a custom-made walk-in closet, is located at the rear of the property and has an ensuite bathroom with a bathtub, walk-in shower, and sink. French doors open onto the south-facing balcony. Another well-sized bedroom is located at the front.
Third Floor
This floor contains three bedrooms. The bathroom is equipped with a bathtub, walk-in shower, double sink, and toilet. On the landing, a loft ladder provides access to the attic, perfect for extra storage. The central heating boiler is located here.
SPECIAL FEATURES
Living area 173.0 m² (compliant with NEN2580) + 56.8 m² of south-facing outdoor space!
Attic of 7.9 m², but gross floor area is 29.1 m²!
Freehold land!
Highly renovated
Air conditioning available
Five bedrooms
Two bathrooms
Energy label A
AREA
This unique home is located on a quiet street in the heart of the popular Jordaan district. Westerstraat, with its diverse selection of wonderful shops and supermarkets, is just around the corner. Numerous charming restaurants, lively cafés, and inviting terraces are within easy reach. Several weekly markets, including Lindengracht, Noordermarkt, and Westerstraat, offer opportunities to buy delicious fresh and local produce. A children's playground is just around the corner. You'll never be bored in this lively neighborhood.
The apartment is easily accessible by car from the A-10 ring road via exits S100 and S114. The Marnixplein bus and tram stop is nearby, served by bus line 88 and tram 5. Amsterdam Central Station is only a 9-minute bike ride away.
GENERAL
This information has been compiled with due care. However, we accept no liability for any incompleteness, inaccuracy, or otherwise, or for the consequences thereof. All stated dimensions and surface areas are indicative. The buyer has the obligation to investigate all matters of importance to them. The real estate agent is acting as the seller's advisor regarding this property. We recommend that you engage a qualified (NVM) real estate agent to guide you through the purchasing process. If you have specific wishes regarding the property, we advise you to inform your purchasing agent in a timely manner and to conduct your own independent investigation. If you do not engage an expert representative, you are legally considered sufficiently knowledgeable to oversee all relevant matters. The NVM terms and conditions apply.