Spaarndammerstraat 145-B
*English below*
Uniek 3-laags benedenhuis van ca. 116m2 met drie slaapkamers. Naast een heerlijke grote tuin van ca. 85m2 is er ook een zonnig dakterras van ca. 28m2. En het staat op eigen grond!
INDELING
Eerste verdieping:
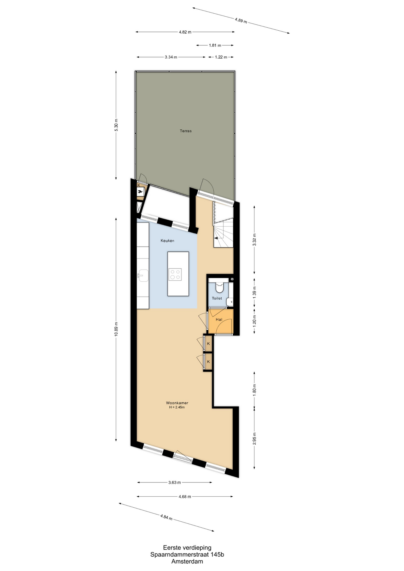
Via het gemeenschappelijke, verzorgde trappenhuis bereikt u op de eerste verdieping het appartement. Aan de voorzijde bevindt zich de ruime, lichte woonkamer met drie grote ramen. Aan de achterzijde ligt de moderne open keuken met kookeiland. Voorzien van een vaatwasser, elektrische 4-pits kookplaat, bora afzuiging, spoelbak, oven, combioven, koelkast, aparte vriezer en een wijnklimaatkast. Vanuit de keuken is er toegang tot het zonnige dakterras van ca. 28 m². Achterin de woning bevindt zich de trap naar de begane grond.
Begane grond:
Hier bevindt zich de indrukwekkende master bedroom. Dankzij de plafondhoogte van bijna 3,60 meter is deze ruime slaapkamer bijzonder licht. Er zijn handige ingebouwde kasten aanwezig en via een deur is er directe toegang naar buiten, waar een trap naar de tuin leidt. Via de ruime overloop gaat er een trap naar beneden naar het souterrain.
Souterrain:
In het souterrain bevinden zich twee slaapkamers en de badkamer, voorzien van een ligbad, inloopdouche en wastafel. Vanuit een van de slaapkamers is er eveneens toegang tot de indrukwekkende, 16 meter diepe tuin. De tuin is dus te bereiken via zowel de begane grond als het souterrain. Achterin bevindt zich een royale berging/tuinhuis van ca. 15 m².
VVE
De gezonde vereniging van eigenaren bestaat uit 10 leden en wordt professioneel geadministreerd door Velzel VvE Diensten. De servicekosten zijn €258,- per maand. Er is een MJOP aanwezig.
BIJZONDERHEDEN
- Woonoppervlakte is 116m2 (NEN2580, meetrapport aanwezig);
- 3 slaapkamers;
- Eigen grond;
- Keuken uit 2022;
- Dakterras van ca. 28m2;
- Tuin van ca. 85m2;
- Berging/tuinhuis in de tuin van ca. 16 m2;
- Dubbel glas;
- Energielabel B;
- Oplevering in overleg;
- Er is pas een overeenkomst als de koopakte is getekend;
- Koopakte wordt opgemaakt door een notaris in Amsterdam.
OMGEVING
De Spaarndammerbuurt is een levendige wijk vol karakter, historische architectuur en een echt buurtgevoel. Vanuit het lichte appartement kijkt u uit over de bruisende Spaarndammerstraat, met gezellige horeca en twee supermarkten om de hoek. Het geliefde Westerpark ligt op loopafstand voor sport, festivals of een ontspannen picknick, en ook de Houthavens zijn in de zomer een heerlijke plek aan het water. De buurt biedt alles wat u nodig heeft, van ambachtelijke winkels tot populaire restaurants. Ook de Jordaan en het centrum van Amsterdam zijn binnen enkele minuten fietsen te bereiken. De bereikbaarheid is uitstekend met openbaar vervoer en de ring A10 vlakbij.
ALGEMEEN
Alle zich in deze aanbieding bevindende informatie is door ons met grote zorgvuldigheid samengesteld. Echter met betrekking tot deze informatie aanvaarden wij geen enkele aansprakelijkheid, noch kan aan de vermelde informatie enig recht worden ontleend.
Graag maken wij een vrijblijvende afspraak met u voor een bezichtiging!
-----------------------------------------------------------------------------------------------------------------------------------------------------
Unique three-story ground-floor apartment of approximately 116m² with three bedrooms. In addition to a lovely large garden of approximately 85m², there is also a sunny roof terrace of approximately 28m². And it is situated on freehold land!
LAYOUT
First floor:
The apartment is reached on the first floor via the shared, well-maintained staircase. At the front is the spacious, bright living room with three large windows. At the rear is the modern open-plan kitchen with a cooking island, equipped with a dishwasher, 4-burner cooktop, sink, oven, combioven, refrigerator, separate freezer, and a wine cooler. From the kitchen, there is access to the sunny roof terrace of approximately 28m². The stairs to the ground floor are located at the rear of the apartment.
Ground floor:
Here you will find the impressive master bedroom. Thanks to the ceiling height of almost 3.60 meters, this spacious bedroom is exceptionally bright. Convenient built-in wardrobes are provided, and a door provides direct access to the garden. A staircase leads down to the basement via the spacious landing.
Basement:
The basement contains two bedrooms and a bathroom with a bathtub, walk-in shower, and sink. One of the bedrooms also provides access to the impressive, 16-meter-deep garden. The garden is accessible from both the ground floor and the basement. At the rear is a spacious storage/garden shed of approximately 15 m².
HOA (Ve)
This healthy homeowners' association consists of 10 members and is professionally administered by Velzel VvE Services. The service fee is €258 per month. A long-term maintenance plan (MJOP) is in place.
SPECIAL FEATURES
- Living area: 116m² (NEN2580, measurement report available);
- 3 bedrooms;
- Freehold land;
- Kitchen from 2022;
- Roof terrace of approximately 28m²;
- Garden of approximately 85m²;
- Storage/garden shed in the garden of approximately 16 m²;
- Double glazing;
- Energy label B;
- Delivery by arrangement;
- A contract is only finalized once the deed of sale has been signed;
- The deed of sale will be drawn up by a notary in Amsterdam.
AREA
The Spaarndammerbuurt is a vibrant neighborhood full of character, historic architecture, and a genuine neighborhood feel. From the bright apartment, you overlook the bustling Spaarndammerstraat, with charming restaurants and two supermarkets just around the corner. The popular Westerpark is within walking distance for sports, festivals, or a relaxing picnic, and the Houthavens are also a wonderful waterfront spot in the summer. The neighborhood offers everything you need, from artisan shops to popular restaurants. The Jordaan district and Amsterdam city center are also just a few minutes' bike ride away. Accessibility is excellent by public transport, and the A10 ring road is nearby.
GENERAL
All information contained in this offer has been compiled with great care. However, we accept no liability for this information, nor can any rights be derived from it.
We would be happy to schedule a viewing with you, free of obligation!
Uniek 3-laags benedenhuis van ca. 116m2 met drie slaapkamers. Naast een heerlijke grote tuin van ca. 85m2 is er ook een zonnig dakterras van ca. 28m2. En het staat op eigen grond!
INDELING
Eerste verdieping:
Via het gemeenschappelijke, verzorgde trappenhuis bereikt u op de eerste verdieping het appartement. Aan de voorzijde bevindt zich de ruime, lichte woonkamer met drie grote ramen. Aan de achterzijde ligt de moderne open keuken met kookeiland. Voorzien van een vaatwasser, elektrische 4-pits kookplaat, bora afzuiging, spoelbak, oven, combioven, koelkast, aparte vriezer en een wijnklimaatkast. Vanuit de keuken is er toegang tot het zonnige dakterras van ca. 28 m². Achterin de woning bevindt zich de trap naar de begane grond.
Begane grond:
Hier bevindt zich de indrukwekkende master bedroom. Dankzij de plafondhoogte van bijna 3,60 meter is deze ruime slaapkamer bijzonder licht. Er zijn handige ingebouwde kasten aanwezig en via een deur is er directe toegang naar buiten, waar een trap naar de tuin leidt. Via de ruime overloop gaat er een trap naar beneden naar het souterrain.
Souterrain:
In het souterrain bevinden zich twee slaapkamers en de badkamer, voorzien van een ligbad, inloopdouche en wastafel. Vanuit een van de slaapkamers is er eveneens toegang tot de indrukwekkende, 16 meter diepe tuin. De tuin is dus te bereiken via zowel de begane grond als het souterrain. Achterin bevindt zich een royale berging/tuinhuis van ca. 15 m².
VVE
De gezonde vereniging van eigenaren bestaat uit 10 leden en wordt professioneel geadministreerd door Velzel VvE Diensten. De servicekosten zijn €258,- per maand. Er is een MJOP aanwezig.
BIJZONDERHEDEN
- Woonoppervlakte is 116m2 (NEN2580, meetrapport aanwezig);
- 3 slaapkamers;
- Eigen grond;
- Keuken uit 2022;
- Dakterras van ca. 28m2;
- Tuin van ca. 85m2;
- Berging/tuinhuis in de tuin van ca. 16 m2;
- Dubbel glas;
- Energielabel B;
- Oplevering in overleg;
- Er is pas een overeenkomst als de koopakte is getekend;
- Koopakte wordt opgemaakt door een notaris in Amsterdam.
OMGEVING
De Spaarndammerbuurt is een levendige wijk vol karakter, historische architectuur en een echt buurtgevoel. Vanuit het lichte appartement kijkt u uit over de bruisende Spaarndammerstraat, met gezellige horeca en twee supermarkten om de hoek. Het geliefde Westerpark ligt op loopafstand voor sport, festivals of een ontspannen picknick, en ook de Houthavens zijn in de zomer een heerlijke plek aan het water. De buurt biedt alles wat u nodig heeft, van ambachtelijke winkels tot populaire restaurants. Ook de Jordaan en het centrum van Amsterdam zijn binnen enkele minuten fietsen te bereiken. De bereikbaarheid is uitstekend met openbaar vervoer en de ring A10 vlakbij.
ALGEMEEN
Alle zich in deze aanbieding bevindende informatie is door ons met grote zorgvuldigheid samengesteld. Echter met betrekking tot deze informatie aanvaarden wij geen enkele aansprakelijkheid, noch kan aan de vermelde informatie enig recht worden ontleend.
Graag maken wij een vrijblijvende afspraak met u voor een bezichtiging!
-----------------------------------------------------------------------------------------------------------------------------------------------------
Unique three-story ground-floor apartment of approximately 116m² with three bedrooms. In addition to a lovely large garden of approximately 85m², there is also a sunny roof terrace of approximately 28m². And it is situated on freehold land!
LAYOUT
First floor:
The apartment is reached on the first floor via the shared, well-maintained staircase. At the front is the spacious, bright living room with three large windows. At the rear is the modern open-plan kitchen with a cooking island, equipped with a dishwasher, 4-burner cooktop, sink, oven, combioven, refrigerator, separate freezer, and a wine cooler. From the kitchen, there is access to the sunny roof terrace of approximately 28m². The stairs to the ground floor are located at the rear of the apartment.
Ground floor:
Here you will find the impressive master bedroom. Thanks to the ceiling height of almost 3.60 meters, this spacious bedroom is exceptionally bright. Convenient built-in wardrobes are provided, and a door provides direct access to the garden. A staircase leads down to the basement via the spacious landing.
Basement:
The basement contains two bedrooms and a bathroom with a bathtub, walk-in shower, and sink. One of the bedrooms also provides access to the impressive, 16-meter-deep garden. The garden is accessible from both the ground floor and the basement. At the rear is a spacious storage/garden shed of approximately 15 m².
HOA (Ve)
This healthy homeowners' association consists of 10 members and is professionally administered by Velzel VvE Services. The service fee is €258 per month. A long-term maintenance plan (MJOP) is in place.
SPECIAL FEATURES
- Living area: 116m² (NEN2580, measurement report available);
- 3 bedrooms;
- Freehold land;
- Kitchen from 2022;
- Roof terrace of approximately 28m²;
- Garden of approximately 85m²;
- Storage/garden shed in the garden of approximately 16 m²;
- Double glazing;
- Energy label B;
- Delivery by arrangement;
- A contract is only finalized once the deed of sale has been signed;
- The deed of sale will be drawn up by a notary in Amsterdam.
AREA
The Spaarndammerbuurt is a vibrant neighborhood full of character, historic architecture, and a genuine neighborhood feel. From the bright apartment, you overlook the bustling Spaarndammerstraat, with charming restaurants and two supermarkets just around the corner. The popular Westerpark is within walking distance for sports, festivals, or a relaxing picnic, and the Houthavens are also a wonderful waterfront spot in the summer. The neighborhood offers everything you need, from artisan shops to popular restaurants. The Jordaan district and Amsterdam city center are also just a few minutes' bike ride away. Accessibility is excellent by public transport, and the A10 ring road is nearby.
GENERAL
All information contained in this offer has been compiled with great care. However, we accept no liability for this information, nor can any rights be derived from it.
We would be happy to schedule a viewing with you, free of obligation!