Overtoom 278-D
Licht en perfect ingedeeld 3-kamer appartement van ruim 73 m2 gelegen op de tweede verdieping van een karakteristiek pand midden in Oud-West, op loopafstand van het Vondelpark. De woning beschikt over een ruime woonkamer met open keuken, twee slaapkamers, badkamer, aparte WC en balkon aan de voor- en achterzijde! Het gebouw is in 2017 volledig gerenoveerd, inclusief de fundering en staat bovendien op eigen grond.
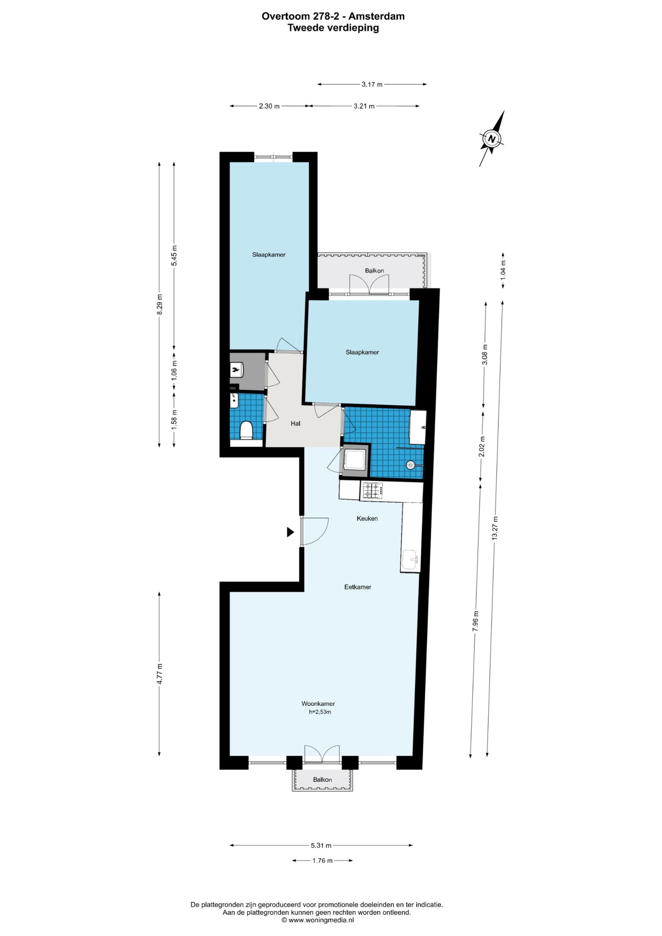
INDELING
Entree op de tweede verdieping via gemeenschappelijk trappenhuis. Bij binnenkomst in de woonkamer valt direct de waanzinnige raampartij op die voor een prachtige lichtinval zorgt. De openslaande deuren geven toegang tot het zonnige franse balkon aan de voorzijde, De moderne open keuken is voorzien van diverse inbouwapparatuur. De living biedt voldoende ruimte voor een fijne eet-en zithoek. In de hal vindt u de verdere toegang naar een separaat WC met fonteintje. Er is een vaste kast met wasmachine/droger opstelling. De badkamer beschikt over een inloopdouche en wastafelmeubel. Aan de achterzijde bevinden zich twee goed bemeten slaapkamers, één daarvan leidt met openslaande deuren naar het balkon aan de achterzijde.
BIJZONDERHEDEN
Licht en charmant 3-kamer appartement van 73,3 m2 (conform NEN2580)
Frans balkon aan de voorzijde én balkon aan de achterzijde
2 slaapkamers
Het pand is in 2017 volledig gerenoveerd, inclusief fundering
Eigen grond
De VvE bestaat uit 5 appartementsrechten en wordt professioneel beheer door Delair Vastgoedbeheer. De maandelijkse servicekosten zijn € 174,64 per maand
OMGEVING
Het appartement is gelegen in Oud-West (Stadsdeel West) op 100 meter van de ingang van het Vondelpark. Voor de dagelijkse boodschappen kunt u terecht bij de Albert Heijn op de Overtoom. De bakker en de slager zijn ook om de hoek te vinden. De diverse winkels op de J.P. Heijestraat en de Kinkerstraat bevinden zich in de directe nabijheid van de woning. Dagelijkse versproducten vindt u op de Ten Katemarkt. De sportscholen David Lloyd of Vondelgym en uiteraard het Vondelpark zelf zijn perfect voor sport en ontspanning. Er zijn uitstekende scholen in de directe omgeving waarvan 1 binnen een straal van 100 meter gelegen. De woning is zowel met de auto als met het openbaar vervoer uitstekend bereikbaar. Binnen 5 minuten is de ringweg A10 te bereiken. In De Hallen zijn een theater, jazzclub, bibliotheek, museum, bioscoop en diverse horeca gelegenheden te vinden.
ALGEMEEN
Deze informatie is door ons met de nodige zorgvuldigheid samengesteld. Onzerzijds wordt echter geen enkele aansprakelijkheid aanvaard voor enige onvolledigheid, onjuistheid of anderszins, dan wel de gevolgen daarvan. Alle opgegeven maten en oppervlakten zijn indicatief. Koper heeft zijn eigen onderzoeksplicht naar alle zaken die voor hem of haar van belang zijn. Met betrekking tot deze woning is de makelaar adviseur van verkoper. Wij adviseren u een deskundige (NVM-)makelaar in te schakelen die u begeleidt bij het aankoopproces. Indien u specifieke wensen heeft omtrent de woning, adviseren wij u deze tijdig kenbaar te maken aan uw aankopend makelaar en hiernaar zelfstandig onderzoek te (laten) doen. Indien u geen deskundige vertegenwoordiger inschakelt, acht u zich volgens de wet deskundige genoeg om alle zaken die van belang zijn te kunnen overzien. Van toepassing zijn de NVM voorwaarden.
===============================================
Bright and perfectly laid-out 3-room apartment of over 73 m² located on the second floor of a characteristic building in the heart of Oud-West, within walking distance of Vondelpark. The apartment features a spacious living room with an open-plan kitchen, two bedrooms, a bathroom, a separate toilet, and balconies at the front and rear! The building was completely renovated in 2017, including the foundation, and is situated on freehold land.
LAYOUT
Entrance on the second floor via a communal staircase. Upon entering the living room, you'll immediately notice the stunning windows that provide beautiful natural light. French doors open onto the sunny French balcony at the front. The modern open-plan kitchen is equipped with various built-in appliances. The living room offers ample space for a comfortable dining and sitting area. In the hallway, you'll find further access to a separate toilet with a small sink. There is a built-in closet with a washer/dryer setup. The bathroom has a walk-in shower and vanity. At the rear are two well-sized bedrooms, one of which leads to the rear balcony through French doors.
SPECIAL FEATURES
Bright and charming 3-room apartment of 73.3 m² (compliant with NEN2580)
French balcony at the front and balcony at the rear
2 bedrooms
The property was fully renovated in 2017, including foundations
Freehold land
The homeowners' association (VvE) consists of 5 apartment rights and is professionally managed by Delair Vastgoedbeheer. The monthly service fees are €174.64
AREA
The apartment is located in Oud-West (West district), 100 meters from the entrance to Vondelpark. For daily groceries, you can go to the Albert Heijn supermarket on Overtoom. The bakery and butcher are also just around the corner. The various shops on J.P. Heijestraat and Kinkerstraat are located in the immediate vicinity. Daily fresh produce can be found at the Ten Katemarkt. The David Lloyd and Vondelgym gyms, and of course Vondelpark itself, are perfect for exercise and relaxation. There are excellent schools in the immediate vicinity, one of which is within a 100-meter radius. The property is easily accessible by both car and public transport. The A10 ring road is just 5 minutes away. De Hallen offers a theater, jazz club, library, museum, cinema, and various restaurants and cafes.
GENERAL
This information has been compiled with due care. However, we accept no liability for any incompleteness, inaccuracy, or otherwise, or for any consequences thereof. All stated dimensions and surface areas are indicative. The buyer is obligated to investigate all matters of importance to them. The real estate agent is acting as the seller's advisor for this property. We recommend engaging an expert (NVM) real estate agent to guide you through the purchase process. If you have any specific wishes regarding the property, we advise you to inform your purchasing agent in a timely manner and to conduct your own independent investigation. If you do not engage an expert representative, you are legally considered sufficiently expert to oversee all relevant matters. The NVM terms and conditions apply.
INDELING
Entree op de tweede verdieping via gemeenschappelijk trappenhuis. Bij binnenkomst in de woonkamer valt direct de waanzinnige raampartij op die voor een prachtige lichtinval zorgt. De openslaande deuren geven toegang tot het zonnige franse balkon aan de voorzijde, De moderne open keuken is voorzien van diverse inbouwapparatuur. De living biedt voldoende ruimte voor een fijne eet-en zithoek. In de hal vindt u de verdere toegang naar een separaat WC met fonteintje. Er is een vaste kast met wasmachine/droger opstelling. De badkamer beschikt over een inloopdouche en wastafelmeubel. Aan de achterzijde bevinden zich twee goed bemeten slaapkamers, één daarvan leidt met openslaande deuren naar het balkon aan de achterzijde.
BIJZONDERHEDEN
Licht en charmant 3-kamer appartement van 73,3 m2 (conform NEN2580)
Frans balkon aan de voorzijde én balkon aan de achterzijde
2 slaapkamers
Het pand is in 2017 volledig gerenoveerd, inclusief fundering
Eigen grond
De VvE bestaat uit 5 appartementsrechten en wordt professioneel beheer door Delair Vastgoedbeheer. De maandelijkse servicekosten zijn € 174,64 per maand
OMGEVING
Het appartement is gelegen in Oud-West (Stadsdeel West) op 100 meter van de ingang van het Vondelpark. Voor de dagelijkse boodschappen kunt u terecht bij de Albert Heijn op de Overtoom. De bakker en de slager zijn ook om de hoek te vinden. De diverse winkels op de J.P. Heijestraat en de Kinkerstraat bevinden zich in de directe nabijheid van de woning. Dagelijkse versproducten vindt u op de Ten Katemarkt. De sportscholen David Lloyd of Vondelgym en uiteraard het Vondelpark zelf zijn perfect voor sport en ontspanning. Er zijn uitstekende scholen in de directe omgeving waarvan 1 binnen een straal van 100 meter gelegen. De woning is zowel met de auto als met het openbaar vervoer uitstekend bereikbaar. Binnen 5 minuten is de ringweg A10 te bereiken. In De Hallen zijn een theater, jazzclub, bibliotheek, museum, bioscoop en diverse horeca gelegenheden te vinden.
ALGEMEEN
Deze informatie is door ons met de nodige zorgvuldigheid samengesteld. Onzerzijds wordt echter geen enkele aansprakelijkheid aanvaard voor enige onvolledigheid, onjuistheid of anderszins, dan wel de gevolgen daarvan. Alle opgegeven maten en oppervlakten zijn indicatief. Koper heeft zijn eigen onderzoeksplicht naar alle zaken die voor hem of haar van belang zijn. Met betrekking tot deze woning is de makelaar adviseur van verkoper. Wij adviseren u een deskundige (NVM-)makelaar in te schakelen die u begeleidt bij het aankoopproces. Indien u specifieke wensen heeft omtrent de woning, adviseren wij u deze tijdig kenbaar te maken aan uw aankopend makelaar en hiernaar zelfstandig onderzoek te (laten) doen. Indien u geen deskundige vertegenwoordiger inschakelt, acht u zich volgens de wet deskundige genoeg om alle zaken die van belang zijn te kunnen overzien. Van toepassing zijn de NVM voorwaarden.
===============================================
Bright and perfectly laid-out 3-room apartment of over 73 m² located on the second floor of a characteristic building in the heart of Oud-West, within walking distance of Vondelpark. The apartment features a spacious living room with an open-plan kitchen, two bedrooms, a bathroom, a separate toilet, and balconies at the front and rear! The building was completely renovated in 2017, including the foundation, and is situated on freehold land.
LAYOUT
Entrance on the second floor via a communal staircase. Upon entering the living room, you'll immediately notice the stunning windows that provide beautiful natural light. French doors open onto the sunny French balcony at the front. The modern open-plan kitchen is equipped with various built-in appliances. The living room offers ample space for a comfortable dining and sitting area. In the hallway, you'll find further access to a separate toilet with a small sink. There is a built-in closet with a washer/dryer setup. The bathroom has a walk-in shower and vanity. At the rear are two well-sized bedrooms, one of which leads to the rear balcony through French doors.
SPECIAL FEATURES
Bright and charming 3-room apartment of 73.3 m² (compliant with NEN2580)
French balcony at the front and balcony at the rear
2 bedrooms
The property was fully renovated in 2017, including foundations
Freehold land
The homeowners' association (VvE) consists of 5 apartment rights and is professionally managed by Delair Vastgoedbeheer. The monthly service fees are €174.64
AREA
The apartment is located in Oud-West (West district), 100 meters from the entrance to Vondelpark. For daily groceries, you can go to the Albert Heijn supermarket on Overtoom. The bakery and butcher are also just around the corner. The various shops on J.P. Heijestraat and Kinkerstraat are located in the immediate vicinity. Daily fresh produce can be found at the Ten Katemarkt. The David Lloyd and Vondelgym gyms, and of course Vondelpark itself, are perfect for exercise and relaxation. There are excellent schools in the immediate vicinity, one of which is within a 100-meter radius. The property is easily accessible by both car and public transport. The A10 ring road is just 5 minutes away. De Hallen offers a theater, jazz club, library, museum, cinema, and various restaurants and cafes.
GENERAL
This information has been compiled with due care. However, we accept no liability for any incompleteness, inaccuracy, or otherwise, or for any consequences thereof. All stated dimensions and surface areas are indicative. The buyer is obligated to investigate all matters of importance to them. The real estate agent is acting as the seller's advisor for this property. We recommend engaging an expert (NVM) real estate agent to guide you through the purchase process. If you have any specific wishes regarding the property, we advise you to inform your purchasing agent in a timely manner and to conduct your own independent investigation. If you do not engage an expert representative, you are legally considered sufficiently expert to oversee all relevant matters. The NVM terms and conditions apply.