Lumeijstraat 5-3
Licht en goed ingedeeld 5-kamerappartement van 80 m2 op de derde en tevens bovenste woonverdieping, gelegen op eigen grond in een statig pand in de Baarsjes. Het appartement heeft een ruime woonkeuken met aangrenzend balkon, woonkamer, drie slaapkamers en twee badkamers. De grote raampartijen en de fraaie plafondhoogte zorgen voor een mooie lichtinval en een bijzonder ruimtelijk gevoel.
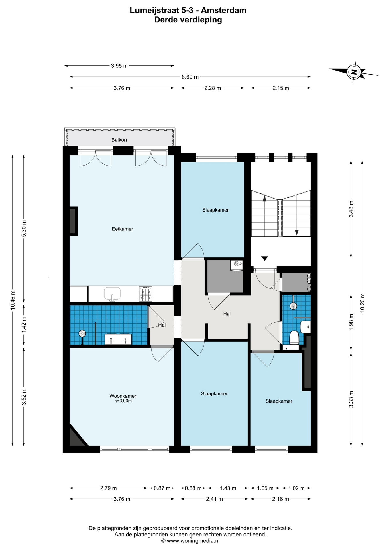
INDELING
Gemeenschappelijk, breed trappenhuis met prachtige originele glas-in-loodramen.
De entree van de woning bevindt zich op de derde verdieping. Aan de voorzijde ligt de royale woonkeuken met openslaande deuren naar het balkon.
Aan de achterzijde bevindt zich de lichte zitkamer. Verder zijn er drie goed bemeten slaapkamers: twee aan de achterzijde en één aan de voorzijde. De woning beschikt over twee moderne badkamers, waarvan één met inloopdouche, dubbel wastafelmeubel en designradiator, en een tweede badkamer met douche en wastafel. Er is daarnaast een separate WC.
BIJZONDERHEDEN
Gebruiksoppervlakte wonen: 79,6 m² volgens de NEN2580
Gelegen op eigen grond!
Fraaie plafondhoogte
Karakteristiek pand met originele glas-in-loodramen in het trappenhuis
3/4 slaapkamers
Twee badkamers
Niet-zelfbewoningsclausule van toepassing
Projectnotaris Hartman LMH
Woningdelersvergunning voor 4 delers
De kleinschalige VvE wordt professioneel beheerd. De servicekosten zijn € 119,51.
OMGEVING
Deze woning bevindt zich in het meest aantrekkelijke deel van de Baarsjes, in stadsdeel West. De Lumeijstraat is een rustige en sfeervolle straat met eenrichtingsverkeer. Op steenworp afstand vind je het bruisende stadsleven met een breed aanbod aan winkels en voorzieningen, zoals in de Jan van Galenstraat, De Clercqstraat, Jan Evertsenstraat en Admiraal de Ruijterweg. Op loopafstand vind je drie grote supermarkten. In 10 minuten loop je naar het hart van de Jordaan of fiets je naar hartje centrum.
In de buurt zijn tal van populaire plekken, zoals Restaurant Faam, Bar Baarsch en Hendrix, en nieuwe, trendy initiatieven zoals Hannah's, waar mensen samenkomen, Selma's voor heerlijke koffie of Massimo Gelato voor het lekkerste ijs.
Op korte loop- en fietsafstand liggen het Erasmuspark, Rembrandtpark, Westerpark en Vondelpark, ideaal voor wandelen, sporten, picknicken of een drankje op het terras. Er zijn ook verschillende scholen en sportscholen in de buurt. De Food- en Filmhallen en Theater Podium Mozaïek zijn makkelijk te bereiken voor een leuke avond uit met een film of concert.
De wijk is goed bereikbaar met het openbaar vervoer (bus en tram, CS en Station Sloterdijk). De ringweg A10 (afslag S105) is slechts vier minuten rijden.
ALGEMEEN
Deze informatie is door ons met de nodige zorgvuldigheid samengesteld. Onzerzijds wordt echter geen enkele aansprakelijkheid aanvaard voor enige onvolledigheid, onjuistheid of anderszins, dan wel de gevolgen daarvan. Alle opgegeven maten en oppervlakten zijn indicatief. Koper heeft zijn eigen onderzoeksplicht naar alle zaken die voor hem of haar van belang zijn. Met betrekking tot deze woning is de makelaar adviseur van verkoper. Wij adviseren u een deskundige (NVM-)makelaar in te schakelen die u begeleidt bij het aankoopproces. Indien u specifieke wensen heeft omtrent de woning, adviseren wij u deze tijdig kenbaar te maken aan uw aankopend makelaar en hiernaar zelfstandig onderzoek te (laten) doen. Indien u geen deskundige vertegenwoordiger inschakelt, acht u zich volgens de wet deskundige genoeg om alle zaken die van belang zijn te kunnen overzien. Van toepassing zijn de NVM voorwaarden.
==========================================================================
Bright and well laid-out 5-room apartment of 80 m² on the third and top floor, situated on freehold land in a stately building in the Baarsjes district. The apartment features a spacious kitchen-diner with an adjoining balcony, a living room, three bedrooms and two bathrooms. The large windows and beautiful ceiling height provide beautiful natural light and a particularly spacious feel.
LAYOUT
A shared, wide staircase features beautiful original stained-glass windows.
The entrance to the apartment is on the third floor. At the front is the spacious kitchen-diner with French doors leading to the balcony.
At the rear is the bright living room. There are also three well-sized bedrooms: two at the rear and one at the front. The house features two modern bathrooms, one with a walk-in shower, double vanity, and designer radiator, and a second bathroom with a shower and vanity. There is also a separate toilet.
SPECIAL FEATURES
Living area: 79.6 m² according to NEN2580
Located on freehold land!
Beautiful ceiling height
Characteristic building with original stained-glass windows in the stairwell
3/4 bedrooms
Two bathrooms
Non-occupancy clause applies
Project notary Hartman LMH
Housing permit for 4 sharers
The small-scale homeowners' association (VvE) is professionally managed. The service costs are €119.51.
SURROUNDINGS
This property is located in the most attractive part of De Baarsjes, in the West district. Lumeijstraat is a quiet and charming one-way street. Just a stone's throw away, you'll find vibrant city life with a wide range of shops and amenities, such as Jan van Galenstraat, De Clercqstraat, Jan Evertsenstraat, and Admiraal de Ruijterweg. Three large supermarkets are within walking distance. The heart of the Jordaan is a 10-minute walk away, or you can cycle to the city center.
The neighborhood boasts numerous popular spots, such as Restaurant Faam, Bar Baarsch, and Hendrix, as well as new, trendy initiatives like Hannah's, a gathering place for people, Selma's for delicious coffee, and Massimo Gelato for the tastiest ice cream.
Erasmus Park, Rembrandt Park, Westerpark, and Vondelpark are a short walk or bike ride away, ideal for walking, exercising, picnicking, or enjoying a drink on a terrace. Several schools and gyms are also nearby. The Foodhallen (Food and Film Halls) and the Podium Mozaïek Theater are easily accessible for a fun night out with a movie or concert.
The neighborhood is easily accessible by public transport (bus and tram, Central Station, and Sloterdijk Station). The A10 ring road (exit S105) is only a four-minute drive away.
GENERAL
This information has been compiled with the utmost care. However, we accept no liability for any incompleteness, inaccuracy, or otherwise, or for the consequences thereof. All stated dimensions and surface areas are indicative. The buyer is obligated to investigate all matters of importance to them. The real estate agent is acting as the seller's advisor regarding this property. We recommend engaging an expert (NVM) real estate agent to guide you through the purchase process. If you have any specific wishes regarding the property, we advise you to inform your purchasing agent in a timely manner and to conduct your own independent investigation. If you do not engage an expert representative, you are legally considered sufficiently expert to be able to oversee all important matters. The NVM terms and conditions apply.
INDELING
Gemeenschappelijk, breed trappenhuis met prachtige originele glas-in-loodramen.
De entree van de woning bevindt zich op de derde verdieping. Aan de voorzijde ligt de royale woonkeuken met openslaande deuren naar het balkon.
Aan de achterzijde bevindt zich de lichte zitkamer. Verder zijn er drie goed bemeten slaapkamers: twee aan de achterzijde en één aan de voorzijde. De woning beschikt over twee moderne badkamers, waarvan één met inloopdouche, dubbel wastafelmeubel en designradiator, en een tweede badkamer met douche en wastafel. Er is daarnaast een separate WC.
BIJZONDERHEDEN
Gebruiksoppervlakte wonen: 79,6 m² volgens de NEN2580
Gelegen op eigen grond!
Fraaie plafondhoogte
Karakteristiek pand met originele glas-in-loodramen in het trappenhuis
3/4 slaapkamers
Twee badkamers
Niet-zelfbewoningsclausule van toepassing
Projectnotaris Hartman LMH
Woningdelersvergunning voor 4 delers
De kleinschalige VvE wordt professioneel beheerd. De servicekosten zijn € 119,51.
OMGEVING
Deze woning bevindt zich in het meest aantrekkelijke deel van de Baarsjes, in stadsdeel West. De Lumeijstraat is een rustige en sfeervolle straat met eenrichtingsverkeer. Op steenworp afstand vind je het bruisende stadsleven met een breed aanbod aan winkels en voorzieningen, zoals in de Jan van Galenstraat, De Clercqstraat, Jan Evertsenstraat en Admiraal de Ruijterweg. Op loopafstand vind je drie grote supermarkten. In 10 minuten loop je naar het hart van de Jordaan of fiets je naar hartje centrum.
In de buurt zijn tal van populaire plekken, zoals Restaurant Faam, Bar Baarsch en Hendrix, en nieuwe, trendy initiatieven zoals Hannah's, waar mensen samenkomen, Selma's voor heerlijke koffie of Massimo Gelato voor het lekkerste ijs.
Op korte loop- en fietsafstand liggen het Erasmuspark, Rembrandtpark, Westerpark en Vondelpark, ideaal voor wandelen, sporten, picknicken of een drankje op het terras. Er zijn ook verschillende scholen en sportscholen in de buurt. De Food- en Filmhallen en Theater Podium Mozaïek zijn makkelijk te bereiken voor een leuke avond uit met een film of concert.
De wijk is goed bereikbaar met het openbaar vervoer (bus en tram, CS en Station Sloterdijk). De ringweg A10 (afslag S105) is slechts vier minuten rijden.
ALGEMEEN
Deze informatie is door ons met de nodige zorgvuldigheid samengesteld. Onzerzijds wordt echter geen enkele aansprakelijkheid aanvaard voor enige onvolledigheid, onjuistheid of anderszins, dan wel de gevolgen daarvan. Alle opgegeven maten en oppervlakten zijn indicatief. Koper heeft zijn eigen onderzoeksplicht naar alle zaken die voor hem of haar van belang zijn. Met betrekking tot deze woning is de makelaar adviseur van verkoper. Wij adviseren u een deskundige (NVM-)makelaar in te schakelen die u begeleidt bij het aankoopproces. Indien u specifieke wensen heeft omtrent de woning, adviseren wij u deze tijdig kenbaar te maken aan uw aankopend makelaar en hiernaar zelfstandig onderzoek te (laten) doen. Indien u geen deskundige vertegenwoordiger inschakelt, acht u zich volgens de wet deskundige genoeg om alle zaken die van belang zijn te kunnen overzien. Van toepassing zijn de NVM voorwaarden.
==========================================================================
Bright and well laid-out 5-room apartment of 80 m² on the third and top floor, situated on freehold land in a stately building in the Baarsjes district. The apartment features a spacious kitchen-diner with an adjoining balcony, a living room, three bedrooms and two bathrooms. The large windows and beautiful ceiling height provide beautiful natural light and a particularly spacious feel.
LAYOUT
A shared, wide staircase features beautiful original stained-glass windows.
The entrance to the apartment is on the third floor. At the front is the spacious kitchen-diner with French doors leading to the balcony.
At the rear is the bright living room. There are also three well-sized bedrooms: two at the rear and one at the front. The house features two modern bathrooms, one with a walk-in shower, double vanity, and designer radiator, and a second bathroom with a shower and vanity. There is also a separate toilet.
SPECIAL FEATURES
Living area: 79.6 m² according to NEN2580
Located on freehold land!
Beautiful ceiling height
Characteristic building with original stained-glass windows in the stairwell
3/4 bedrooms
Two bathrooms
Non-occupancy clause applies
Project notary Hartman LMH
Housing permit for 4 sharers
The small-scale homeowners' association (VvE) is professionally managed. The service costs are €119.51.
SURROUNDINGS
This property is located in the most attractive part of De Baarsjes, in the West district. Lumeijstraat is a quiet and charming one-way street. Just a stone's throw away, you'll find vibrant city life with a wide range of shops and amenities, such as Jan van Galenstraat, De Clercqstraat, Jan Evertsenstraat, and Admiraal de Ruijterweg. Three large supermarkets are within walking distance. The heart of the Jordaan is a 10-minute walk away, or you can cycle to the city center.
The neighborhood boasts numerous popular spots, such as Restaurant Faam, Bar Baarsch, and Hendrix, as well as new, trendy initiatives like Hannah's, a gathering place for people, Selma's for delicious coffee, and Massimo Gelato for the tastiest ice cream.
Erasmus Park, Rembrandt Park, Westerpark, and Vondelpark are a short walk or bike ride away, ideal for walking, exercising, picnicking, or enjoying a drink on a terrace. Several schools and gyms are also nearby. The Foodhallen (Food and Film Halls) and the Podium Mozaïek Theater are easily accessible for a fun night out with a movie or concert.
The neighborhood is easily accessible by public transport (bus and tram, Central Station, and Sloterdijk Station). The A10 ring road (exit S105) is only a four-minute drive away.
GENERAL
This information has been compiled with the utmost care. However, we accept no liability for any incompleteness, inaccuracy, or otherwise, or for the consequences thereof. All stated dimensions and surface areas are indicative. The buyer is obligated to investigate all matters of importance to them. The real estate agent is acting as the seller's advisor regarding this property. We recommend engaging an expert (NVM) real estate agent to guide you through the purchase process. If you have any specific wishes regarding the property, we advise you to inform your purchasing agent in a timely manner and to conduct your own independent investigation. If you do not engage an expert representative, you are legally considered sufficiently expert to be able to oversee all important matters. The NVM terms and conditions apply.