Lindengracht 278-2
Sfeervol en goed onderhouden appartement van 47 m² in hartje Jordaan!
Dit charmante appartement combineert een lichte en ruime woonkamer, een separate keuken, een royale slaapkamer en een balkon aan de achterzijde. Kortom: een heerlijke plek om te wonen, midden in een van de meest geliefde buurten van Amsterdam.
INDELING
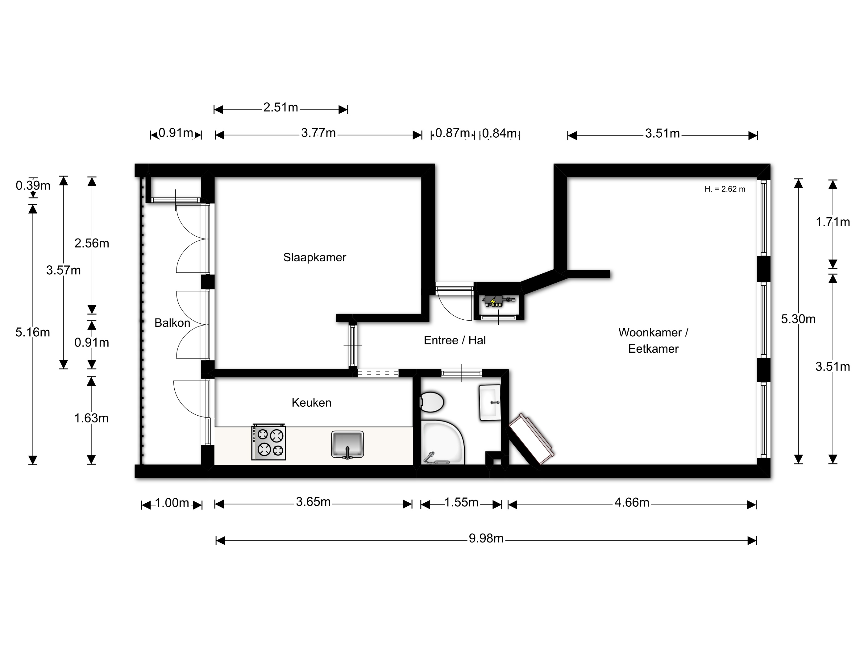
Gemeenschappelijk entree en trappenhuis. Eigen entree op de tweede verdieping. Vanuit de hal zijn alle vertrekken bereikbaar. Aan de voorzijde ligt de ruime woonkamer, die dankzij de drie grote ramen baadt in het licht en een prachtig uitzicht biedt over de Lindengracht. De nette keuken bevindt zich aan de achterzijde en is uitgerust met alle gewenste inbouwapparatuur. Aangrenzend treft u de goed bemeten slaapkamer, eveneens aan de achterzijde. Zowel vanuit de keuken als vanuit de slaapkamer is er toegang tot het balkon. Centraal in het appartement ligt de badkamer, voorzien van wastafel, douche en toilet. Op de bovenste verdieping bevindt zich nog een praktische berging van 4 m².
VVE
Het appartement maakt deel uit van een kleinschalige en professioneel beheerde VvE. De servicekosten bedragen € €133.92 per maand.
GROND
Het appartementsrecht staat op eigen grond. Dus geen erfpacht!
BIJZONDERHEDEN
• Woonoppervlakte 47 m², midden in de Jordaan
• Balkon aan de achterzijde
• Praktische berging van 4 m² op de bovenste verdieping
• Goed bemeten slaapkamer
• Netjes onderhouden en voorzien van dubbel glas aan de voorzijde
• Mogelijkheid tot het creëren van twee slaapkamers
• Gelegen op eigen grond
OMGEVING
De ligging kan nauwelijks beter: in het hart van de Jordaan, aan de charmante Lindengracht. Deze brede, groene straat met een rijke historie (gedempt in 1612) biedt een rustige woonomgeving zonder drukke winkels. Toch bruist de buurt: op zaterdag verandert de straat samen met de Noordermarkt in een gezellige markt vol delicatessen en verse producten. Ook voor dagelijkse boodschappen, ontbijt of lunch bent u hier aan het juiste adres. Daarnaast vindt u in de directe omgeving talloze cafés, terrassen, restaurants, galeries en bijzondere winkels. Het Centraal Station, met al haar openbaar vervoersmogelijkheden, ligt op loopafstand.
ALGEMEEN
Deze informatie is door ons met de nodige zorgvuldigheid samengesteld. Onzerzijds wordt echter geen enkele aansprakelijkheid aanvaard voor enige onvolledigheid, onjuistheid of anderszins, dan wel de gevolgen daarvan. Alle opgegeven maten en oppervlakten zijn indicatief. Koper heeft zijn eigen onderzoeksplicht naar alle zaken die voor hem of haar van belang zijn. Met betrekking tot deze woning is de makelaar adviseur van verkoper. Wij adviseren u een deskundige (NVM-)makelaar in te schakelen die u begeleidt bij het aankoopproces. Indien u specifieke wensen heeft omtrent de woning, adviseren wij u deze tijdig kenbaar te maken aan uw aankopend makelaar en hiernaar zelfstandig onderzoek te (laten) doen. Indien u geen deskundige vertegenwoordiger inschakelt, acht u zich volgens de wet deskundige genoeg om alle zaken die van belang zijn te kunnen overzien. Van toepassing zijn de NVM voorwaarden.
===========================
Attractive and well-maintained 47 m² apartment in the heart of the Jordaan!
This charming apartment combines a bright and spacious living room, a separate kitchen, a generous bedroom, and a balcony at the rear. In short: a delightful place to live, right in one of Amsterdam’s most sought-after neighbourhoods.
LAYOUT
Communal entrance and staircase. Private entrance on the second floor. The hallway provides access to all rooms. At the front lies the spacious living room, which is bathed in natural light thanks to three large windows and offers a beautiful view over the Lindengracht. The neat kitchen is located at the rear and is fitted with all desired built-in appliances. Adjacent is the well-proportioned bedroom, also at the rear. Both the kitchen and the bedroom provide access to the balcony. Centrally located is the bathroom, equipped with a washbasin, shower, and toilet. On the top floor, you will find a practical 4 m² storage room.
HOMEOWNERS’ ASSOCIATION
The apartment is part of a small-scale and professionally managed owners’ association (VvE). The monthly service charges amount to € 133.92.
LAND
The apartment is located on freehold land. No leasehold!
DETAILS
• Living area of 47 m², right in the Jordaan
• Balcony at the rear
• Practical 4 m² storage room on the top floor
• Well-sized bedroom
• Well-maintained and fitted with double glazing at the front
• Possibility to create two bedrooms
• Located on freehold land
SURROUNDINGS
The location could hardly be better: in the heart of the Jordaan, on the charming Lindengracht. This wide, leafy street with a rich history (canal filled in 1612) offers a peaceful residential atmosphere without busy shops. Yet the neighbourhood is vibrant: on Saturdays, the street and the nearby Noordermarkt transform into a lively market full of delicacies and fresh produce. Daily groceries, as well as breakfast or lunch, can also be found close by. In the immediate vicinity, there are numerous cafés, terraces, restaurants, galleries, and unique shops. Amsterdam Central Station, with all its public transport connections, is within walking distance.
DISCLAIMER
This information has been compiled by us with the utmost care. However, no liability is accepted for any incompleteness, inaccuracy, or otherwise, nor for the consequences thereof. All stated measurements and surface areas are indicative. Buyers are responsible for carrying out their own investigation into all matters that are of importance to them. With regard to this property, the estate agent acts as advisor to the seller. We recommend that you engage a professional (NVM) estate agent to guide you through the purchase process. If you have specific wishes regarding the property, we advise you to make these known to your purchasing agent in good time and to (have them) conduct independent research. If you do not engage a professional representative, you will be deemed legally expert enough to oversee all matters of importance. The NVM terms and conditions apply.
Dit charmante appartement combineert een lichte en ruime woonkamer, een separate keuken, een royale slaapkamer en een balkon aan de achterzijde. Kortom: een heerlijke plek om te wonen, midden in een van de meest geliefde buurten van Amsterdam.
INDELING
Gemeenschappelijk entree en trappenhuis. Eigen entree op de tweede verdieping. Vanuit de hal zijn alle vertrekken bereikbaar. Aan de voorzijde ligt de ruime woonkamer, die dankzij de drie grote ramen baadt in het licht en een prachtig uitzicht biedt over de Lindengracht. De nette keuken bevindt zich aan de achterzijde en is uitgerust met alle gewenste inbouwapparatuur. Aangrenzend treft u de goed bemeten slaapkamer, eveneens aan de achterzijde. Zowel vanuit de keuken als vanuit de slaapkamer is er toegang tot het balkon. Centraal in het appartement ligt de badkamer, voorzien van wastafel, douche en toilet. Op de bovenste verdieping bevindt zich nog een praktische berging van 4 m².
VVE
Het appartement maakt deel uit van een kleinschalige en professioneel beheerde VvE. De servicekosten bedragen € €133.92 per maand.
GROND
Het appartementsrecht staat op eigen grond. Dus geen erfpacht!
BIJZONDERHEDEN
• Woonoppervlakte 47 m², midden in de Jordaan
• Balkon aan de achterzijde
• Praktische berging van 4 m² op de bovenste verdieping
• Goed bemeten slaapkamer
• Netjes onderhouden en voorzien van dubbel glas aan de voorzijde
• Mogelijkheid tot het creëren van twee slaapkamers
• Gelegen op eigen grond
OMGEVING
De ligging kan nauwelijks beter: in het hart van de Jordaan, aan de charmante Lindengracht. Deze brede, groene straat met een rijke historie (gedempt in 1612) biedt een rustige woonomgeving zonder drukke winkels. Toch bruist de buurt: op zaterdag verandert de straat samen met de Noordermarkt in een gezellige markt vol delicatessen en verse producten. Ook voor dagelijkse boodschappen, ontbijt of lunch bent u hier aan het juiste adres. Daarnaast vindt u in de directe omgeving talloze cafés, terrassen, restaurants, galeries en bijzondere winkels. Het Centraal Station, met al haar openbaar vervoersmogelijkheden, ligt op loopafstand.
ALGEMEEN
Deze informatie is door ons met de nodige zorgvuldigheid samengesteld. Onzerzijds wordt echter geen enkele aansprakelijkheid aanvaard voor enige onvolledigheid, onjuistheid of anderszins, dan wel de gevolgen daarvan. Alle opgegeven maten en oppervlakten zijn indicatief. Koper heeft zijn eigen onderzoeksplicht naar alle zaken die voor hem of haar van belang zijn. Met betrekking tot deze woning is de makelaar adviseur van verkoper. Wij adviseren u een deskundige (NVM-)makelaar in te schakelen die u begeleidt bij het aankoopproces. Indien u specifieke wensen heeft omtrent de woning, adviseren wij u deze tijdig kenbaar te maken aan uw aankopend makelaar en hiernaar zelfstandig onderzoek te (laten) doen. Indien u geen deskundige vertegenwoordiger inschakelt, acht u zich volgens de wet deskundige genoeg om alle zaken die van belang zijn te kunnen overzien. Van toepassing zijn de NVM voorwaarden.
===========================
Attractive and well-maintained 47 m² apartment in the heart of the Jordaan!
This charming apartment combines a bright and spacious living room, a separate kitchen, a generous bedroom, and a balcony at the rear. In short: a delightful place to live, right in one of Amsterdam’s most sought-after neighbourhoods.
LAYOUT
Communal entrance and staircase. Private entrance on the second floor. The hallway provides access to all rooms. At the front lies the spacious living room, which is bathed in natural light thanks to three large windows and offers a beautiful view over the Lindengracht. The neat kitchen is located at the rear and is fitted with all desired built-in appliances. Adjacent is the well-proportioned bedroom, also at the rear. Both the kitchen and the bedroom provide access to the balcony. Centrally located is the bathroom, equipped with a washbasin, shower, and toilet. On the top floor, you will find a practical 4 m² storage room.
HOMEOWNERS’ ASSOCIATION
The apartment is part of a small-scale and professionally managed owners’ association (VvE). The monthly service charges amount to € 133.92.
LAND
The apartment is located on freehold land. No leasehold!
DETAILS
• Living area of 47 m², right in the Jordaan
• Balcony at the rear
• Practical 4 m² storage room on the top floor
• Well-sized bedroom
• Well-maintained and fitted with double glazing at the front
• Possibility to create two bedrooms
• Located on freehold land
SURROUNDINGS
The location could hardly be better: in the heart of the Jordaan, on the charming Lindengracht. This wide, leafy street with a rich history (canal filled in 1612) offers a peaceful residential atmosphere without busy shops. Yet the neighbourhood is vibrant: on Saturdays, the street and the nearby Noordermarkt transform into a lively market full of delicacies and fresh produce. Daily groceries, as well as breakfast or lunch, can also be found close by. In the immediate vicinity, there are numerous cafés, terraces, restaurants, galleries, and unique shops. Amsterdam Central Station, with all its public transport connections, is within walking distance.
DISCLAIMER
This information has been compiled by us with the utmost care. However, no liability is accepted for any incompleteness, inaccuracy, or otherwise, nor for the consequences thereof. All stated measurements and surface areas are indicative. Buyers are responsible for carrying out their own investigation into all matters that are of importance to them. With regard to this property, the estate agent acts as advisor to the seller. We recommend that you engage a professional (NVM) estate agent to guide you through the purchase process. If you have specific wishes regarding the property, we advise you to make these known to your purchasing agent in good time and to (have them) conduct independent research. If you do not engage a professional representative, you will be deemed legally expert enough to oversee all matters of importance. The NVM terms and conditions apply.