Krommeniestraat 45
Unieke energiezuinige hofwoning van 162 m² met een heerlijke achtertuin, die grenst aan een grote gemeenschappelijke tuin, in de geliefde Spaandammerbuurt. De woning heeft een doorzonwoonkamer met open woonkeuken en een plafondhoogte van 3,27m, 4 slaapkamers, 2 badkamers en 2 balkons. Daarnaast is er een riant souterrain van ruim 21 m² met hoog plafond die voor vele doeleinden gebruikt kan worden en die rechtstreeks toegang biedt tot de garage met eigen parkeerplaats!
INDELING
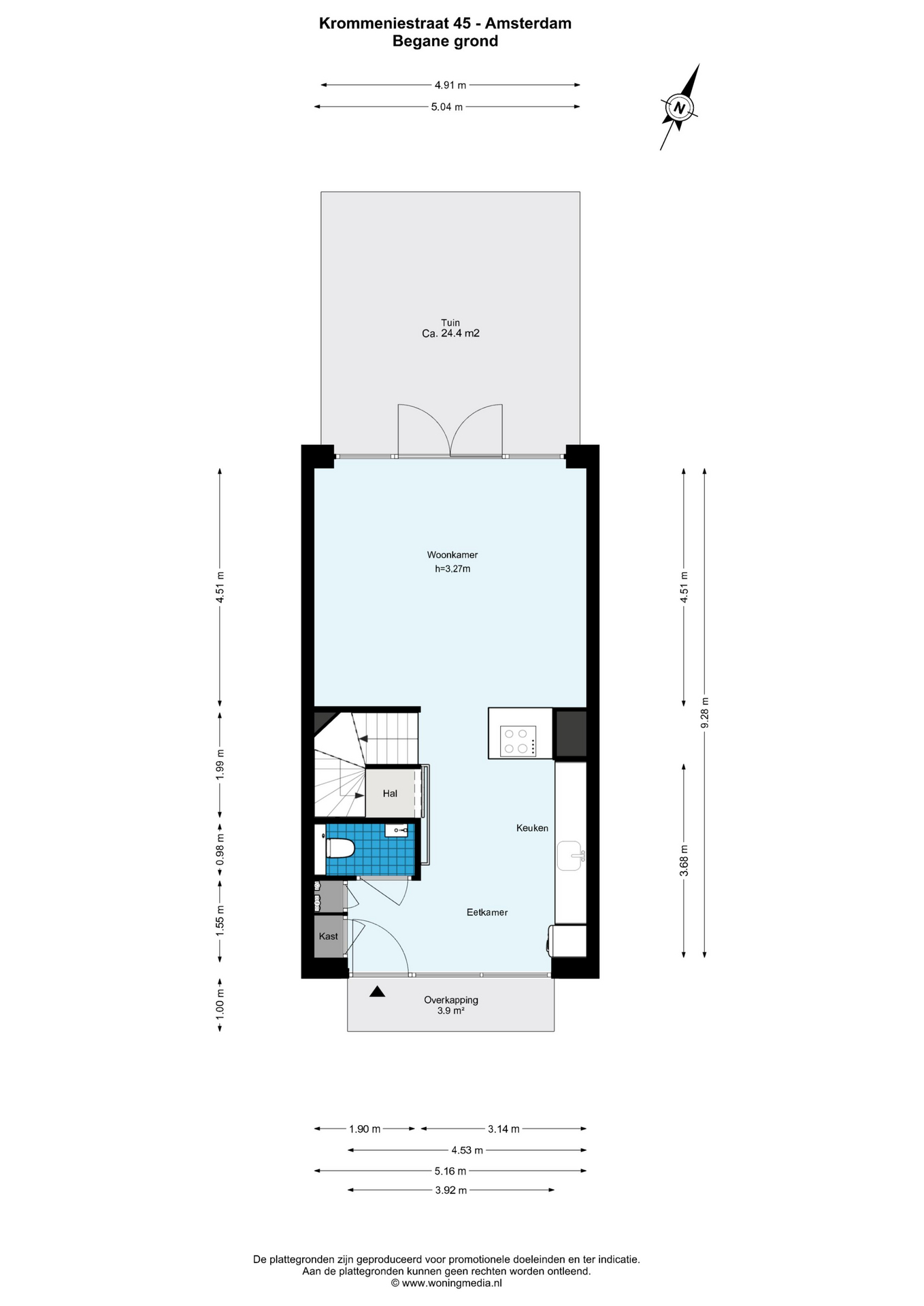
Begane grond
De entree bestaat uit een grote glazen pui en bevindt zich aan het hof. Door de grote raampartijen en plafondhoogte van 3.27 m beleeft u bij binnenkomst direct een zee aan ruimte en licht. De woonkeuken is voorzien van diverse inbouwapparatuur. Er is een WC met fonteintje.
De grote verdiepingshoge raampartijen bieden uitzicht op groen aan zowel de voor- als achterzijde. Via de dubbele openslaande deuren is er toegang tot de achtertuin gelegen op het zuiden, waar het heerlijk vertoeven is. De achtertuin grenst aan de onder architectuur fraai aangelegde gemeenschappelijke tuin en boomgaard.
Eerste verdieping
Overloop. Ruime slaapkamer met frans balkon aan de voorzijde. Een tweede aan de achterzijde, ook met frans balkon. De ruime badkamer heeft een inloopdouche, ligbad en dubbele wastafel. Er is een separate WC met fonteintje. Ook is er een vaste kast met wasmachine/droger aansluiting.
Tweede verdieping
Twee ruime slaapkamers, beide met openslaande deuren naar de balkons aan de voor- en achterzijde. Er is badkamer met inloopdouche en wastafel.
Kelder
De kelder is bereikbaar via de vaste trap in de woonkeuken. Vanuit deze ruimte is er rechtstreeks toegang tot de parkeergarage met eigen parkeerplaats en mogelijkheid tot elektrisch laden.
ERFPACHT
De erfpacht bedraagt € 8336,- per jaar en is fiscaal aftrekbaar. Het huidige tijdvak loopt tot en met 30 juni 2068 met 25-jaarlijkse indexering. De canon wordt voor het eerst in 2043 weer geïndexeerd. Vanaf 1 juli 2068 is de erfpacht eeuwigdurend afgekocht!
BIJZONDERHEDEN
- 161,7 m² woonoppervlakte inclusief de kelder van 21,2 m² die directe toegang tot de parkeergarage biedt.
- Privé achtertuin van circa 24 m² grenzend aan de gemeenschappelijke tuin.
- Balkons aan voor- en achterzijde (totaal 9,9 m²)
- Voorzijde gelegen in een autovrij hof met gemeenschappelijke kruidentuin.
- Er is een gemeenschappelijke afsluitbare ruimte voor fietsen en scooters.
- Energielabel A+++
- Zonnepanelen op het dak van het gebouw.
- Dit gebouw heeft meerdere architectuurprijzen gewonnen.
- De VvE wordt professioneel beheerd. De maandelijkse servicekosten bedragen € 203,83 (wonen) & € 56,24 (parkeren)
- Mogelijkheid om een eigen laadvoorziening te laten aanbrengen bij de parkeerplaats, aangesloten op de eigen meterkast (gevoed door zonnepanelen)
OMGEVING
In de aantrekkelijke Spaarndammerbuurt, op loopafstand van het Westerpark, dichtbij het centrum, de Jordaan en de Amsterdamse Houthavens is gerealiseerd het nieuwbouwproject "De Verbinding". Dit exclusief nieuwbouwplan heeft 36 zeer royale stadswoningen, een eigen parkeergarage met laadpalen. De karakteristieke Amsterdamse School-stijl uit de buurt komt terug in de architectuur, met prachtige details, bijzondere vormen en een speels karakter. Midden in het hof ligt een prachtig groene kruidentuin en het gebouw is omzoomd met een gemeenschappelijke tuin en boomgaard waar de privétuinen naadloos in doorlopen. Dit gebouw heeft verschillende architectuurprijzen gewonnen, waaronder in 2022 de Amsterdamse nieuwbouwprijs. De woning is zeer energiezuinig. Zo beschikt de woning over een individuele warmtepomp en ligt het gemeenschappelijke dak vol met zonnepanelen. Het metselwerk van het gebouw is bijzonder door de toegepaste kleuren en vormen en vormt zo een fraaie verbinding met de omgeving die duidelijk refereert naar de Amsterdamse School waar de Spaarndammerbuurt bekend om staat.
Via de Spaarndammerdijk kom je op de Ring A10 West of juist richting het Centraal Station. Ook zijn er snelle, directe busverbindingen met het centrum, Centraal Station en station Sloterdijk en een pontverbinding met Amsterdam Noord. Fietsend kun je sowieso alle kanten op, het Westerpark door naar station Sloterdijk, maar ook via de Nassaukade de binnenstad in of langs het Haarlemmerplein naar de Jordaan. Om de hoek heb je de Spaarndammerstraat met winkels, restaurants en cafés. De Albert Heijn is 5 minuten lopen, iets verderop de Jumbo. Aan het einde van de straat is het Westerpark.
ALGEMEEN
Deze informatie is door ons met de nodige zorgvuldigheid samengesteld. Onzerzijds wordt echter geen enkele aansprakelijkheid aanvaard voor enige onvolledigheid, onjuistheid of anderszins, dan wel de gevolgen daarvan. Alle opgegeven maten en oppervlakten zijn indicatief. Koper heeft zijn eigen onderzoeksplicht naar alle zaken die voor hem of haar van belang zijn. Met betrekking tot deze woning is de makelaar adviseur van verkoper. Wij adviseren u een deskundige (NVM-)makelaar in te schakelen die u begeleidt bij het aankoopproces. Indien u specifieke wensen heeft omtrent de woning, adviseren wij u deze tijdig kenbaar te maken aan uw aankopend makelaar en hiernaar zelfstandig onderzoek te (laten) doen. Indien u geen deskundige vertegenwoordiger inschakelt, acht u zich volgens de wet deskundige genoeg om alle zaken die van belang zijn te kunnen overzien. Van toepassing zijn de NVM voorwaarden.
=============================================
Unique, energy-efficient courtyard townhouse of 162 m² with a lovely back garden, bordering a large communal garden, in the popular Spaadammerbuurt neighborhood. The house features a living room with an open-plan kitchen and a ceiling height of 3.27 m, 4 bedrooms, 2 bathrooms, and 2 balconies. There is also a spacious basement of over 21 m² with a high ceiling that can be used for various purposes and provides direct access to the garage with a private parking space!
LAYOUT
Ground Floor
The entrance consists of a large glass facade and is located on the courtyard. Thanks to the large windows and a ceiling height of 3.27 m, you immediately experience a wealth of space and light upon entering. The kitchen/diner is equipped with various built-in appliances. There is a toilet with a small sink.
The large, floor-to-ceiling windows offer views of greenery at both the front and rear. Double doors open onto the south-facing back garden, a wonderful place to relax. The back garden borders the beautifully landscaped communal garden and orchard, designed by an architect.
First Floor
Landing. Spacious bedroom with a French balcony at the front. A second bedroom at the rear, also with a French balcony. The spacious bathroom has a walk-in shower, bathtub, and double sink. There is a separate toilet with a small hand basin. There is also a built-in closet with washer/dryer connections.
Second Floor
Two spacious bedrooms, both with French doors opening onto the balconies at the front and rear. The bathroom has a walk-in shower and sink.
Cellar
The basement is accessible via the staircase in the kitchen/diner. From this room, there is direct access to the parking garage with a private parking space and electric charging facilities.
LEASEHOLD
The leasehold is €8,336 per year and is tax-deductible. The current lease term runs until June 30, 2068, with 25-yearly indexation. The ground rent will be indexed for the first time in 2043. As of July 1, 2068, the leasehold has been bought off in perpetuity!
SPECIAL FEATURES
- 161.7 m² of living space, including the 21.2 m² basement, which provides direct access to the parking garage.
- Private backyard of approximately 24 m² adjacent to the communal garden.
- Balconies at the front and rear (totaling 9.9 m²)
- The front of the building is situated in a car-free courtyard with a communal herb garden.
- There is a communal lockable storage area for bicycles and scooters.
- Energy label A+++
- Solar panels on the roof of the building.
- This building has won several architectural awards.
- The homeowners' association (VvE) is professionally managed. The monthly service costs are €203.83 (living) & €56.24 (parking).
- Option to have a private charging station installed at the parking space, connected to the private meter cupboard (powered by solar panels).
AREA
In the attractive Spaarndammerbuurt neighborhood, within walking distance of Westerpark, close to the city center, the Jordaan district, and Amsterdam's Houthavens, the new development "De Verbinding" has been completed. This exclusive new development features 36 very spacious townhouses and a private parking garage with charging stations. The neighborhood's characteristic Amsterdam School style is reflected in the architecture, with beautiful details, unique shapes, and a playful character. A beautiful green herb garden lies in the center of the courtyard, and the building is surrounded by a communal garden and orchard, seamlessly connecting the private gardens. This building has won several architectural awards, including the Amsterdam New Construction Award in 2022. The home is highly energy-efficient, with a separate heat pump and solar panels on the communal roof. The building's brickwork is unique due to the applied colors and shapes, creating a beautiful connection with the surroundings, clearly referencing the Amsterdam School style for which the Spaarndammerbuurt is known.
Spaarndammerdijk provides access to the A10 West ring road or to Central Station. There are also fast, direct bus connections to the city center, Central Station, and Sloterdijk Station, as well as a ferry connection to Amsterdam Noord. Cycling is easily accessible in all directions: through Westerpark to Sloterdijk Station, or via Nassaukade into the city center or past Haarlemmerplein to the Jordaan district. Around the corner is Spaarndammerstraat, lined with shops, restaurants, and cafés. Albert Heijn is a 5-minute walk away, and a Jumbo supermarket is a little further on. Westerpark is at the end of the street.
GENERAL
This information has been compiled with due care. However, we accept no liability for any incompleteness, inaccuracy, or otherwise, or for the consequences thereof. All stated dimensions and surface areas are indicative. The buyer has the obligation to investigate all matters of importance to them. The real estate agent is the seller's advisor regarding this property. We recommend an expert (NVM) real estate agent.
INDELING
Begane grond
De entree bestaat uit een grote glazen pui en bevindt zich aan het hof. Door de grote raampartijen en plafondhoogte van 3.27 m beleeft u bij binnenkomst direct een zee aan ruimte en licht. De woonkeuken is voorzien van diverse inbouwapparatuur. Er is een WC met fonteintje.
De grote verdiepingshoge raampartijen bieden uitzicht op groen aan zowel de voor- als achterzijde. Via de dubbele openslaande deuren is er toegang tot de achtertuin gelegen op het zuiden, waar het heerlijk vertoeven is. De achtertuin grenst aan de onder architectuur fraai aangelegde gemeenschappelijke tuin en boomgaard.
Eerste verdieping
Overloop. Ruime slaapkamer met frans balkon aan de voorzijde. Een tweede aan de achterzijde, ook met frans balkon. De ruime badkamer heeft een inloopdouche, ligbad en dubbele wastafel. Er is een separate WC met fonteintje. Ook is er een vaste kast met wasmachine/droger aansluiting.
Tweede verdieping
Twee ruime slaapkamers, beide met openslaande deuren naar de balkons aan de voor- en achterzijde. Er is badkamer met inloopdouche en wastafel.
Kelder
De kelder is bereikbaar via de vaste trap in de woonkeuken. Vanuit deze ruimte is er rechtstreeks toegang tot de parkeergarage met eigen parkeerplaats en mogelijkheid tot elektrisch laden.
ERFPACHT
De erfpacht bedraagt € 8336,- per jaar en is fiscaal aftrekbaar. Het huidige tijdvak loopt tot en met 30 juni 2068 met 25-jaarlijkse indexering. De canon wordt voor het eerst in 2043 weer geïndexeerd. Vanaf 1 juli 2068 is de erfpacht eeuwigdurend afgekocht!
BIJZONDERHEDEN
- 161,7 m² woonoppervlakte inclusief de kelder van 21,2 m² die directe toegang tot de parkeergarage biedt.
- Privé achtertuin van circa 24 m² grenzend aan de gemeenschappelijke tuin.
- Balkons aan voor- en achterzijde (totaal 9,9 m²)
- Voorzijde gelegen in een autovrij hof met gemeenschappelijke kruidentuin.
- Er is een gemeenschappelijke afsluitbare ruimte voor fietsen en scooters.
- Energielabel A+++
- Zonnepanelen op het dak van het gebouw.
- Dit gebouw heeft meerdere architectuurprijzen gewonnen.
- De VvE wordt professioneel beheerd. De maandelijkse servicekosten bedragen € 203,83 (wonen) & € 56,24 (parkeren)
- Mogelijkheid om een eigen laadvoorziening te laten aanbrengen bij de parkeerplaats, aangesloten op de eigen meterkast (gevoed door zonnepanelen)
OMGEVING
In de aantrekkelijke Spaarndammerbuurt, op loopafstand van het Westerpark, dichtbij het centrum, de Jordaan en de Amsterdamse Houthavens is gerealiseerd het nieuwbouwproject "De Verbinding". Dit exclusief nieuwbouwplan heeft 36 zeer royale stadswoningen, een eigen parkeergarage met laadpalen. De karakteristieke Amsterdamse School-stijl uit de buurt komt terug in de architectuur, met prachtige details, bijzondere vormen en een speels karakter. Midden in het hof ligt een prachtig groene kruidentuin en het gebouw is omzoomd met een gemeenschappelijke tuin en boomgaard waar de privétuinen naadloos in doorlopen. Dit gebouw heeft verschillende architectuurprijzen gewonnen, waaronder in 2022 de Amsterdamse nieuwbouwprijs. De woning is zeer energiezuinig. Zo beschikt de woning over een individuele warmtepomp en ligt het gemeenschappelijke dak vol met zonnepanelen. Het metselwerk van het gebouw is bijzonder door de toegepaste kleuren en vormen en vormt zo een fraaie verbinding met de omgeving die duidelijk refereert naar de Amsterdamse School waar de Spaarndammerbuurt bekend om staat.
Via de Spaarndammerdijk kom je op de Ring A10 West of juist richting het Centraal Station. Ook zijn er snelle, directe busverbindingen met het centrum, Centraal Station en station Sloterdijk en een pontverbinding met Amsterdam Noord. Fietsend kun je sowieso alle kanten op, het Westerpark door naar station Sloterdijk, maar ook via de Nassaukade de binnenstad in of langs het Haarlemmerplein naar de Jordaan. Om de hoek heb je de Spaarndammerstraat met winkels, restaurants en cafés. De Albert Heijn is 5 minuten lopen, iets verderop de Jumbo. Aan het einde van de straat is het Westerpark.
ALGEMEEN
Deze informatie is door ons met de nodige zorgvuldigheid samengesteld. Onzerzijds wordt echter geen enkele aansprakelijkheid aanvaard voor enige onvolledigheid, onjuistheid of anderszins, dan wel de gevolgen daarvan. Alle opgegeven maten en oppervlakten zijn indicatief. Koper heeft zijn eigen onderzoeksplicht naar alle zaken die voor hem of haar van belang zijn. Met betrekking tot deze woning is de makelaar adviseur van verkoper. Wij adviseren u een deskundige (NVM-)makelaar in te schakelen die u begeleidt bij het aankoopproces. Indien u specifieke wensen heeft omtrent de woning, adviseren wij u deze tijdig kenbaar te maken aan uw aankopend makelaar en hiernaar zelfstandig onderzoek te (laten) doen. Indien u geen deskundige vertegenwoordiger inschakelt, acht u zich volgens de wet deskundige genoeg om alle zaken die van belang zijn te kunnen overzien. Van toepassing zijn de NVM voorwaarden.
=============================================
Unique, energy-efficient courtyard townhouse of 162 m² with a lovely back garden, bordering a large communal garden, in the popular Spaadammerbuurt neighborhood. The house features a living room with an open-plan kitchen and a ceiling height of 3.27 m, 4 bedrooms, 2 bathrooms, and 2 balconies. There is also a spacious basement of over 21 m² with a high ceiling that can be used for various purposes and provides direct access to the garage with a private parking space!
LAYOUT
Ground Floor
The entrance consists of a large glass facade and is located on the courtyard. Thanks to the large windows and a ceiling height of 3.27 m, you immediately experience a wealth of space and light upon entering. The kitchen/diner is equipped with various built-in appliances. There is a toilet with a small sink.
The large, floor-to-ceiling windows offer views of greenery at both the front and rear. Double doors open onto the south-facing back garden, a wonderful place to relax. The back garden borders the beautifully landscaped communal garden and orchard, designed by an architect.
First Floor
Landing. Spacious bedroom with a French balcony at the front. A second bedroom at the rear, also with a French balcony. The spacious bathroom has a walk-in shower, bathtub, and double sink. There is a separate toilet with a small hand basin. There is also a built-in closet with washer/dryer connections.
Second Floor
Two spacious bedrooms, both with French doors opening onto the balconies at the front and rear. The bathroom has a walk-in shower and sink.
Cellar
The basement is accessible via the staircase in the kitchen/diner. From this room, there is direct access to the parking garage with a private parking space and electric charging facilities.
LEASEHOLD
The leasehold is €8,336 per year and is tax-deductible. The current lease term runs until June 30, 2068, with 25-yearly indexation. The ground rent will be indexed for the first time in 2043. As of July 1, 2068, the leasehold has been bought off in perpetuity!
SPECIAL FEATURES
- 161.7 m² of living space, including the 21.2 m² basement, which provides direct access to the parking garage.
- Private backyard of approximately 24 m² adjacent to the communal garden.
- Balconies at the front and rear (totaling 9.9 m²)
- The front of the building is situated in a car-free courtyard with a communal herb garden.
- There is a communal lockable storage area for bicycles and scooters.
- Energy label A+++
- Solar panels on the roof of the building.
- This building has won several architectural awards.
- The homeowners' association (VvE) is professionally managed. The monthly service costs are €203.83 (living) & €56.24 (parking).
- Option to have a private charging station installed at the parking space, connected to the private meter cupboard (powered by solar panels).
AREA
In the attractive Spaarndammerbuurt neighborhood, within walking distance of Westerpark, close to the city center, the Jordaan district, and Amsterdam's Houthavens, the new development "De Verbinding" has been completed. This exclusive new development features 36 very spacious townhouses and a private parking garage with charging stations. The neighborhood's characteristic Amsterdam School style is reflected in the architecture, with beautiful details, unique shapes, and a playful character. A beautiful green herb garden lies in the center of the courtyard, and the building is surrounded by a communal garden and orchard, seamlessly connecting the private gardens. This building has won several architectural awards, including the Amsterdam New Construction Award in 2022. The home is highly energy-efficient, with a separate heat pump and solar panels on the communal roof. The building's brickwork is unique due to the applied colors and shapes, creating a beautiful connection with the surroundings, clearly referencing the Amsterdam School style for which the Spaarndammerbuurt is known.
Spaarndammerdijk provides access to the A10 West ring road or to Central Station. There are also fast, direct bus connections to the city center, Central Station, and Sloterdijk Station, as well as a ferry connection to Amsterdam Noord. Cycling is easily accessible in all directions: through Westerpark to Sloterdijk Station, or via Nassaukade into the city center or past Haarlemmerplein to the Jordaan district. Around the corner is Spaarndammerstraat, lined with shops, restaurants, and cafés. Albert Heijn is a 5-minute walk away, and a Jumbo supermarket is a little further on. Westerpark is at the end of the street.
GENERAL
This information has been compiled with due care. However, we accept no liability for any incompleteness, inaccuracy, or otherwise, or for the consequences thereof. All stated dimensions and surface areas are indicative. The buyer has the obligation to investigate all matters of importance to them. The real estate agent is the seller's advisor regarding this property. We recommend an expert (NVM) real estate agent.