Fagelstraat 6-H
Licht en goed ingedeeld dubbel benedenhuis van 103 m² met een riante woonkamer en een heerlijke tuin op de begane grond en twee goed bemeten slaapkamers met badkamer en terras op de eerste verdieping. Gelegen op eigen grond in een rustige straat tussen de Jordaan en stadsdeel Westerpark.
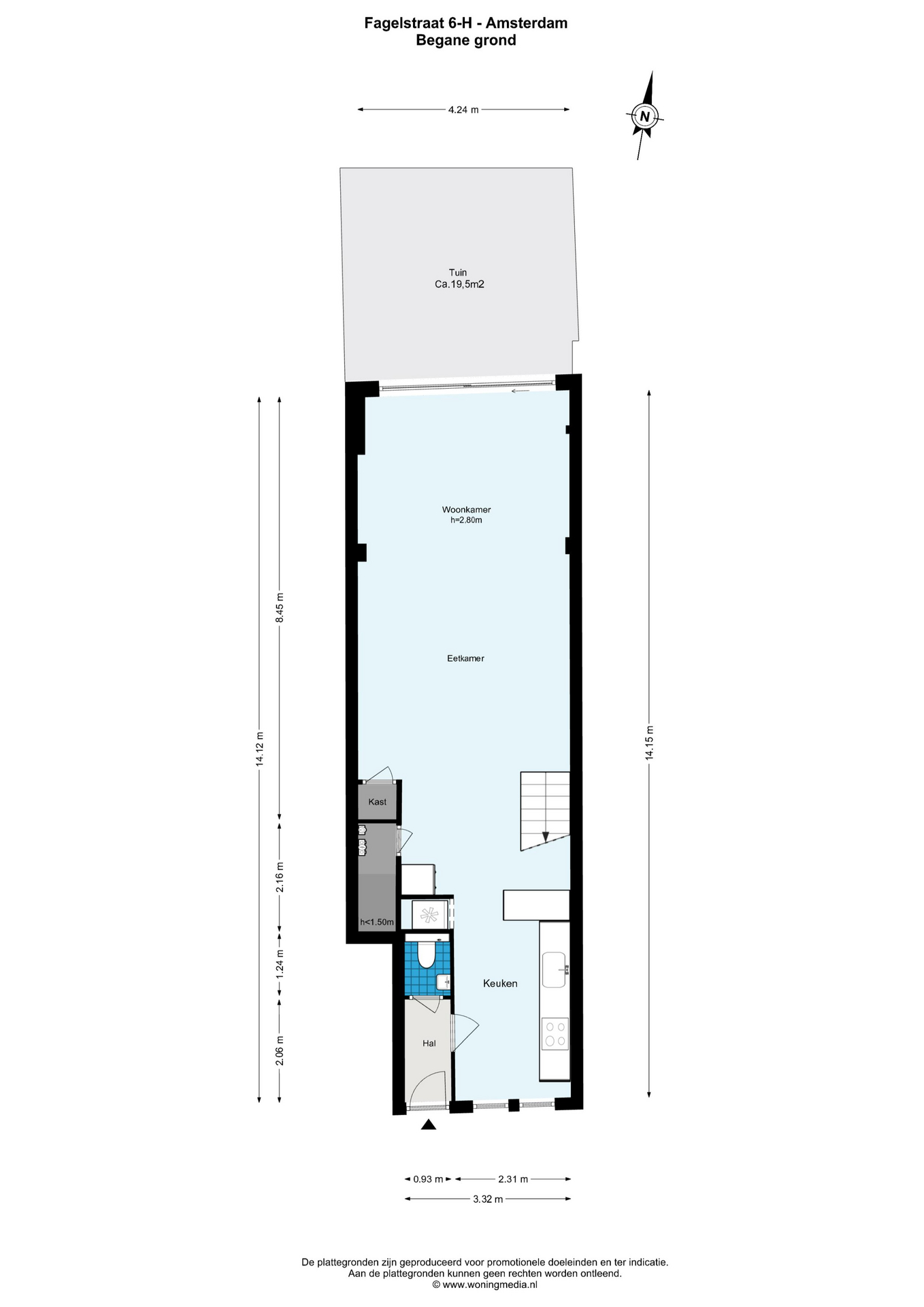
INDELING
Eigen entree vanaf de straatzijde. In de hal bevinden zich een separate WC met fontein en een trapkast met bergruimte. Aan de voorzijde bevindt zich de open keuken met diverse inbouwapparatuur, veel werkruimte, kastruimte en grote ramen aan de straatzijde. Aansluitend volgt de eetkamer, die overloopt in de woonkamer aan de tuinzijde. De woonkamer is voorzien van een grote schuifpui met toegang tot de tuin. De tuin van circa 20 m² ligt op het noordwesten en biedt privacy en rust, met ruimte voor ligstoelen, eettafel en barbecue.
Op de eerste verdieping bevinden zich twee goed bemeten slaapkamers. De slaapkamer aan de achterzijde biedt via openslaande deuren toegang tot het dakterras. De badkamer is voorzien van een ligbad met douchegedeelte, een wastafelmeubel en designradiator. Ook op deze verdieping is een tweede WC aanwezig en een ruime wasruimte.
BIJZONDERHEDEN
Woonoppervlakte ca. 103 m² (conform NEN2580)
Dubbel benedenhuis gelegen op de begane grond en eerste verdieping
Heerlijke tuin van ca. 20 m² en een dakterras van ca. 5 m² op de eerste verdieping
Twee ruime slaapkamers, mogelijkheid voor een tweede badkamer en een derde slaapkamer (zie alternatieve indeling plattegrond)
Eigen entree vanaf de straat
Gelegen op eigen grond
Kleinschalige en gezonde VvE bestaande uit 3 leden, voorzien van een MJOP. Recent is de voorgevel inclusief houtwerk geschilderd en vernieuwd
Voor- en achterzijde voorzien van dubbel glas
Benedenverdieping in 2018 volledig gerenoveerd en uitgerust met vloerverwarming
Maandelijkse servicekosten bedragen € 84
Energielabel B
OMGEVING
De woning is gelegen in de populaire Fagelstraat in Amsterdam Oud-West, een rustige zijstraat van de Nassaukade. Op loopafstand liggen zowel het groene Westerpark als het Frederik Hendrikplantsoen en Eerste Marnixplantsoen – perfect voor ontspanning, sport of een wandeling met kinderen.
De buurt biedt volop voorzieningen: van gezellige cafés, restaurants en winkels tot supermarkten en boetieks. Ook basisscholen, kinderopvang en speeltuinen bevinden zich in de nabije omgeving, waardoor dit een zeer complete en kindvriendelijke wijk is.
De bereikbaarheid is uitstekend. Diverse tram- en buslijnen stoppen om de hoek, Amsterdam Centraal ligt op korte fietsafstand en met de auto bereikt u binnen enkele minuten de Ring A10. Voor parkeren kunt u met een parkeervergunning terecht op straat of in de moderne Marnixgarage, waar bewoners met vergunning 24/7 toegang hebben.
Kortom: een ideale plek om te wonen, met de Jordaan, veel groen en alle voorzieningen binnen handbereik.
ALGEMEEN
Deze informatie is door ons met de nodige zorgvuldigheid samengesteld. Onzerzijds wordt echter geen enkele aansprakelijkheid aanvaard voor enige onvolledigheid, onjuistheid of anderszins, dan wel de gevolgen daarvan. Alle opgegeven maten en oppervlakten zijn indicatief. Koper heeft zijn eigen onderzoeksplicht naar alle zaken die voor hem of haar van belang zijn. Met betrekking tot deze woning is de makelaar adviseur van verkoper. Wij adviseren u een deskundige (NVM-)makelaar in te schakelen die u begeleidt bij het aankoopproces. Indien u specifieke wensen heeft omtrent de woning, adviseren wij u deze tijdig kenbaar te maken aan uw aankopend makelaar en hiernaar zelfstandig onderzoek te (laten) doen. Indien u geen deskundige vertegenwoordiger inschakelt, acht u zich volgens de wet deskundige genoeg om alle zaken die van belang zijn te kunnen overzien. Van toepassing zijn de NVM voorwaarden.
============================================================================================================================
Bright and well laid-out 103 m² duplex ground floor apartment featuring a spacious living room and a lovely garden on the ground floor, and two well-sized bedrooms with a bathroom and terrace on the first floor. Situated on freehold land in a quiet street between the Jordaan district and the Westerpark district.
LAYOUT
Private entrance from the street. The hallway includes a separate toilet with a hand basin and a storage cupboard under the stairs. At the front of the apartment is the open-plan kitchen with various built-in appliances, ample workspace, cupboard space, and large windows facing the street. Adjacent is the dining room, which flows into the living room on the garden side. The living room features large sliding doors leading to the garden. The approximately 20 m² northwest-facing garden offers privacy and tranquility, with space for lounge chairs, a dining table, and a barbecue.
On the first floor are two well-sized bedrooms. The bedroom at the rear opens onto the roof terrace through French doors. The bathroom is equipped with a bathtub with shower attachment, a vanity, and a designer radiator. This floor also features a second toilet and a spacious laundry room.
SPECIAL FEATURES
Living area approx. 103 m² (compliant with NEN2580)
Double ground-floor apartment comprising the ground and first floors
Lovely garden of approx. 20 m² and a roof terrace of approx. 5 m² on the first floor
Two spacious bedrooms, possibility for a second bathroom and a third bedroom (see alternative layout floor plan)
Private entrance from the street
Located on freehold land
Small-scale and healthy homeowners' association consisting of 3 members, with a long-term maintenance plan (MJOP). The facade, including woodwork, was recently painted and renovated.
Front and rear have double glazing
Ground floor fully renovated in 2018 and equipped with underfloor heating
Monthly service charges are €84
Energy label B
AREA
The property is located on the popular Fagelstraat in Amsterdam Oud-West, a quiet side street of Nassaukade. The green Westerpark, Frederik Hendrikplantsoen, and Eerste Marnixplantsoen are all within walking distance – perfect for relaxing, exercising, or taking a stroll with children.
The neighborhood offers a wide range of amenities: from cozy cafés, restaurants, and shops to supermarkets and boutiques. Primary schools, childcare facilities, and playgrounds are also located nearby, making this a very well-equipped and child-friendly neighborhood.
Accessibility is excellent. Several tram and bus lines stop just around the corner, Amsterdam Central Station is a short bike ride away, and the A10 ring road is just a few minutes away by car. Parking is available on the street with a permit or in the modern Marnixgarage, which residents with permits have 24/7 access.
In short: an ideal place to live, with the Jordaan neighborhood, plenty of greenery, and all amenities within easy reach.
GENERAL
This information has been compiled with the utmost care. However, we accept no liability for any incompleteness, inaccuracy, or otherwise, or the consequences thereof. All stated dimensions and surface areas are indicative. Buyers have their own obligation to investigate all matters of importance to them. The real estate agent is the seller's advisor regarding this property. We recommend engaging a qualified (NVM) real estate agent to guide you through the purchase process. If you have specific wishes regarding the property, we advise you to inform your purchasing agent in a timely manner and to conduct your own independent investigation. If you do not engage a qualified representative, you are legally considered sufficiently qualified to understand all relevant matters. The NVM terms and conditions apply.
INDELING
Eigen entree vanaf de straatzijde. In de hal bevinden zich een separate WC met fontein en een trapkast met bergruimte. Aan de voorzijde bevindt zich de open keuken met diverse inbouwapparatuur, veel werkruimte, kastruimte en grote ramen aan de straatzijde. Aansluitend volgt de eetkamer, die overloopt in de woonkamer aan de tuinzijde. De woonkamer is voorzien van een grote schuifpui met toegang tot de tuin. De tuin van circa 20 m² ligt op het noordwesten en biedt privacy en rust, met ruimte voor ligstoelen, eettafel en barbecue.
Op de eerste verdieping bevinden zich twee goed bemeten slaapkamers. De slaapkamer aan de achterzijde biedt via openslaande deuren toegang tot het dakterras. De badkamer is voorzien van een ligbad met douchegedeelte, een wastafelmeubel en designradiator. Ook op deze verdieping is een tweede WC aanwezig en een ruime wasruimte.
BIJZONDERHEDEN
Woonoppervlakte ca. 103 m² (conform NEN2580)
Dubbel benedenhuis gelegen op de begane grond en eerste verdieping
Heerlijke tuin van ca. 20 m² en een dakterras van ca. 5 m² op de eerste verdieping
Twee ruime slaapkamers, mogelijkheid voor een tweede badkamer en een derde slaapkamer (zie alternatieve indeling plattegrond)
Eigen entree vanaf de straat
Gelegen op eigen grond
Kleinschalige en gezonde VvE bestaande uit 3 leden, voorzien van een MJOP. Recent is de voorgevel inclusief houtwerk geschilderd en vernieuwd
Voor- en achterzijde voorzien van dubbel glas
Benedenverdieping in 2018 volledig gerenoveerd en uitgerust met vloerverwarming
Maandelijkse servicekosten bedragen € 84
Energielabel B
OMGEVING
De woning is gelegen in de populaire Fagelstraat in Amsterdam Oud-West, een rustige zijstraat van de Nassaukade. Op loopafstand liggen zowel het groene Westerpark als het Frederik Hendrikplantsoen en Eerste Marnixplantsoen – perfect voor ontspanning, sport of een wandeling met kinderen.
De buurt biedt volop voorzieningen: van gezellige cafés, restaurants en winkels tot supermarkten en boetieks. Ook basisscholen, kinderopvang en speeltuinen bevinden zich in de nabije omgeving, waardoor dit een zeer complete en kindvriendelijke wijk is.
De bereikbaarheid is uitstekend. Diverse tram- en buslijnen stoppen om de hoek, Amsterdam Centraal ligt op korte fietsafstand en met de auto bereikt u binnen enkele minuten de Ring A10. Voor parkeren kunt u met een parkeervergunning terecht op straat of in de moderne Marnixgarage, waar bewoners met vergunning 24/7 toegang hebben.
Kortom: een ideale plek om te wonen, met de Jordaan, veel groen en alle voorzieningen binnen handbereik.
ALGEMEEN
Deze informatie is door ons met de nodige zorgvuldigheid samengesteld. Onzerzijds wordt echter geen enkele aansprakelijkheid aanvaard voor enige onvolledigheid, onjuistheid of anderszins, dan wel de gevolgen daarvan. Alle opgegeven maten en oppervlakten zijn indicatief. Koper heeft zijn eigen onderzoeksplicht naar alle zaken die voor hem of haar van belang zijn. Met betrekking tot deze woning is de makelaar adviseur van verkoper. Wij adviseren u een deskundige (NVM-)makelaar in te schakelen die u begeleidt bij het aankoopproces. Indien u specifieke wensen heeft omtrent de woning, adviseren wij u deze tijdig kenbaar te maken aan uw aankopend makelaar en hiernaar zelfstandig onderzoek te (laten) doen. Indien u geen deskundige vertegenwoordiger inschakelt, acht u zich volgens de wet deskundige genoeg om alle zaken die van belang zijn te kunnen overzien. Van toepassing zijn de NVM voorwaarden.
============================================================================================================================
Bright and well laid-out 103 m² duplex ground floor apartment featuring a spacious living room and a lovely garden on the ground floor, and two well-sized bedrooms with a bathroom and terrace on the first floor. Situated on freehold land in a quiet street between the Jordaan district and the Westerpark district.
LAYOUT
Private entrance from the street. The hallway includes a separate toilet with a hand basin and a storage cupboard under the stairs. At the front of the apartment is the open-plan kitchen with various built-in appliances, ample workspace, cupboard space, and large windows facing the street. Adjacent is the dining room, which flows into the living room on the garden side. The living room features large sliding doors leading to the garden. The approximately 20 m² northwest-facing garden offers privacy and tranquility, with space for lounge chairs, a dining table, and a barbecue.
On the first floor are two well-sized bedrooms. The bedroom at the rear opens onto the roof terrace through French doors. The bathroom is equipped with a bathtub with shower attachment, a vanity, and a designer radiator. This floor also features a second toilet and a spacious laundry room.
SPECIAL FEATURES
Living area approx. 103 m² (compliant with NEN2580)
Double ground-floor apartment comprising the ground and first floors
Lovely garden of approx. 20 m² and a roof terrace of approx. 5 m² on the first floor
Two spacious bedrooms, possibility for a second bathroom and a third bedroom (see alternative layout floor plan)
Private entrance from the street
Located on freehold land
Small-scale and healthy homeowners' association consisting of 3 members, with a long-term maintenance plan (MJOP). The facade, including woodwork, was recently painted and renovated.
Front and rear have double glazing
Ground floor fully renovated in 2018 and equipped with underfloor heating
Monthly service charges are €84
Energy label B
AREA
The property is located on the popular Fagelstraat in Amsterdam Oud-West, a quiet side street of Nassaukade. The green Westerpark, Frederik Hendrikplantsoen, and Eerste Marnixplantsoen are all within walking distance – perfect for relaxing, exercising, or taking a stroll with children.
The neighborhood offers a wide range of amenities: from cozy cafés, restaurants, and shops to supermarkets and boutiques. Primary schools, childcare facilities, and playgrounds are also located nearby, making this a very well-equipped and child-friendly neighborhood.
Accessibility is excellent. Several tram and bus lines stop just around the corner, Amsterdam Central Station is a short bike ride away, and the A10 ring road is just a few minutes away by car. Parking is available on the street with a permit or in the modern Marnixgarage, which residents with permits have 24/7 access.
In short: an ideal place to live, with the Jordaan neighborhood, plenty of greenery, and all amenities within easy reach.
GENERAL
This information has been compiled with the utmost care. However, we accept no liability for any incompleteness, inaccuracy, or otherwise, or the consequences thereof. All stated dimensions and surface areas are indicative. Buyers have their own obligation to investigate all matters of importance to them. The real estate agent is the seller's advisor regarding this property. We recommend engaging a qualified (NVM) real estate agent to guide you through the purchase process. If you have specific wishes regarding the property, we advise you to inform your purchasing agent in a timely manner and to conduct your own independent investigation. If you do not engage a qualified representative, you are legally considered sufficiently qualified to understand all relevant matters. The NVM terms and conditions apply.