Esmoreitstraat 40-2
Dit sfeervol en licht 3-kamerappartement is gelegen op de tweede verdieping van een goed onderhouden appartementencomplex met op de vierde verdieping een ruime berging.
Direct om de hoek is het vernieuwde Bos & Lommerplein en het Erasmuspark. Het appartement heeft houten kozijnen met dubbel glas aan de voorzijde, een mooie houten vloer, een erker aan de voorzijde en een balkon aan de achterzijde.
INDELING
Tweede verdieping:
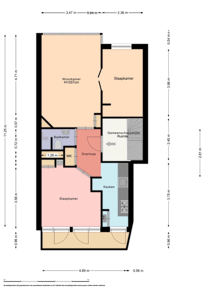
Entree/hal met toegang tot de vertrekken. Aan de voorzijde van de woning bevindt zich de ruime en zeer lichte woonkamer met een mooie erker. Vanuit de woonkamer is toegang tot een slaapkamer eveneens gelegen aan de voorzijde. Er zijn inmiddels openslaande deuren gemaakt naar deze slaapkamer, waardoor er een tweede slaapkamer is ontstaan, dit is nog niet zichtbaar op de foto’s, wel op de plattegrond!
Door de hal bereik je ook de badkamer met een douche en toilet. De dichte keuken met wit keukenblok is aan de achterzijde en heeft een wasmachine aansluiting. Verder is er nog een ruime slaapkamer. Het balkon is zowel vanuit de keuken als vanuit de grootste slaapkamer te bereiken. Op de vierde verdieping bevindt zich de zolderkamer van 9 m2 voorzien van een raam en elektra die ook geschikt is als studeerkamer.
BIJZONDERHEDEN
- Woonoppervlakte is 54 m2
- 2 slaapkamers
- Zolderberging van 9 m2
- Dubbele beglazing met houten kozijnen aan de voorzijde welke in 2021 geplaatst zijn
- Geschikt voor maximaal 2 personen
- Ongemeubileerd
- Balkon!
- Beschikbaar voor een periode van maximaal 2 jaar
HUURPRIJS
De huurprijs bedraagt € 2200,- per maand, exclusief gas, water en elektra, inclusief servicekosten.
De huurperiode bedraagt 2 jaar of korter, huurder dient een waarborg te stellen ter grootte van 2 maanden huur bruto.
OMGEVING
Het appartement ligt in een rustige straat met een brede stoep en plantsoen in de Erasmusparkbuurt (binnen het geliefde stadsdeel West). De Jordaan bevindt zich op slechts 5 minuten fietsafstand en binnen 10 minuten met de fiets zit je in het centrum van Amsterdam. In de nabije omgeving is een ruim aanbod aan winkels. Onder andere Coffee Company, een nieuwe vestiging Hema en drie grote supermarkten. Door wijkvernieuwingsprojecten vestigen steeds meer middenstanders en culturele ondernemers zich in de wijk en worden renovaties al jaren sterk gepromoot.
Alles wat de bewoners nodig hebben in de buurt is aanwezig: cultuur en horeca in o.a. Podium Mozaiëk, een speeltuin op het Wachterliedplantsoen, onderwijs- en sociale voorzieningen in de Tijl Uilenspiegelstraat en sport en recreatie in het Erasmuspark en het Joos Banckersplantsoen. Aan het eind van de straat ligt het Erasmuspark, waar je zelfs een bootje kunt aanmeren. Ook het Westerpark en de Westergasfabriek zijn vlakbij. Voor het openbaar vervoer zit je hier goed; diverse trams en bussen brengen je naar alle hoeken van de stad. Ook station Sloterdijk ligt om de hoek. Met de auto ben je met 2 minuten op de ring A-10 West.
ALGEMEEN
Alle zich in deze aanbieding bevindende informatie is door ons met grote zorgvuldigheid samengesteld.
Echter met betrekking tot deze informatie aanvaarden wij geen enkele aansprakelijkheid, noch kan aan
de vermelde informatie enig recht worden ontleend.
Graag maken wij een vrijblijvende afspraak voor een bezichtiging met u!
===============================================================
***English Text***
This charming and light 3-room apartment is located on the second floor of a well-maintained apartment complex with a large storage room at the fourth floor.
Immediately around the corner is the renovated Bos & Lommerplein and the Erasmus Park. The apartment has wooden frames with double glazing at the front, a beautiful wooden floor, a bay window at the front and a balcony at the rear.
LAY OUT
Entrance/hall second floor with access to the rooms. At the front of the house is the spacious and very bright living room with a beautiful bay window. From the living room is access to a bedroom also located at the front. There are now double doors to this bedroom, which created a second bedroom. This isn’t visible on the photo’s yet, but it is on the floorplan.
Through the hall you also reach the bathroom with a shower and toilet. The closed kitchen with white kitchen unit is at the rear and has a washing machine connection. There is also a spacious bedroom. The balcony is accessible from both the kitchen and the main bedroom. On the fourth floor is the attic room of 9 m2 with a window and electricity, which is also suitable as a study.
PARTICULARITIES
- Living area is 54 m2
- 2 bedrooms
- Attic storage large 9 m2
- Double glazing with wooden frames at the front which were placed in 2021
- Suitable for maximum two people
- Unfurnished
- Balcony!
- Available for a maximum period of 2 years
RENT
The rent is € 2200, - per month, excluding gas, water and electricity, but including service costs.
The rental period is 2 years or shorter, tenant must provide a guarantee to the size of two months rent needs gross.
SURROUNDINGS
The apartment is located in a quiet street with a wide sidewalk and park in the Erasmus Park neighborhood (within the popular West district). The Jordaan is only 5 minutes by bike and within 10 minutes by bike you are in the center of Amsterdam. There is a wide range of shops in the vicinity. These include Coffee Company, a new Hema branch and three large supermarkets. Neighborhood renewal projects have led to the establishment of more tradespeople and cultural entrepreneurs in the district, and renovations are already being strongly promoted.
Everything the residents need is available in the area: culture and catering in, among others, Podium Mozaiëk, a playground at the Wachterliedplantsoen, educational and social facilities in the Tijl Uilenspiegelstraat and sports and recreation in the Erasmus Park and the Joos Banckersplantsoen. At the end of the street is the Erasmus Park, where you can even moor a boat. The Westerpark and the Westergasfabriek are also nearby. You are in the right place for public transport; various trams and buses take you to all corners of the city. Sloterdijk station is also around the corner. By car you are on the ring A-10 West in 2 minutes.
GENERAL
We have thoughtfully composed all the information gathered for this house. However we are not liable concerning any information given, but the listed information given can be borrowed. Further expansion possibilities are entirely buyers responsibility and subject to Gemeente/municipality approval
We would love to make an appointment to view this apartment with you!
Direct om de hoek is het vernieuwde Bos & Lommerplein en het Erasmuspark. Het appartement heeft houten kozijnen met dubbel glas aan de voorzijde, een mooie houten vloer, een erker aan de voorzijde en een balkon aan de achterzijde.
INDELING
Tweede verdieping:
Entree/hal met toegang tot de vertrekken. Aan de voorzijde van de woning bevindt zich de ruime en zeer lichte woonkamer met een mooie erker. Vanuit de woonkamer is toegang tot een slaapkamer eveneens gelegen aan de voorzijde. Er zijn inmiddels openslaande deuren gemaakt naar deze slaapkamer, waardoor er een tweede slaapkamer is ontstaan, dit is nog niet zichtbaar op de foto’s, wel op de plattegrond!
Door de hal bereik je ook de badkamer met een douche en toilet. De dichte keuken met wit keukenblok is aan de achterzijde en heeft een wasmachine aansluiting. Verder is er nog een ruime slaapkamer. Het balkon is zowel vanuit de keuken als vanuit de grootste slaapkamer te bereiken. Op de vierde verdieping bevindt zich de zolderkamer van 9 m2 voorzien van een raam en elektra die ook geschikt is als studeerkamer.
BIJZONDERHEDEN
- Woonoppervlakte is 54 m2
- 2 slaapkamers
- Zolderberging van 9 m2
- Dubbele beglazing met houten kozijnen aan de voorzijde welke in 2021 geplaatst zijn
- Geschikt voor maximaal 2 personen
- Ongemeubileerd
- Balkon!
- Beschikbaar voor een periode van maximaal 2 jaar
HUURPRIJS
De huurprijs bedraagt € 2200,- per maand, exclusief gas, water en elektra, inclusief servicekosten.
De huurperiode bedraagt 2 jaar of korter, huurder dient een waarborg te stellen ter grootte van 2 maanden huur bruto.
OMGEVING
Het appartement ligt in een rustige straat met een brede stoep en plantsoen in de Erasmusparkbuurt (binnen het geliefde stadsdeel West). De Jordaan bevindt zich op slechts 5 minuten fietsafstand en binnen 10 minuten met de fiets zit je in het centrum van Amsterdam. In de nabije omgeving is een ruim aanbod aan winkels. Onder andere Coffee Company, een nieuwe vestiging Hema en drie grote supermarkten. Door wijkvernieuwingsprojecten vestigen steeds meer middenstanders en culturele ondernemers zich in de wijk en worden renovaties al jaren sterk gepromoot.
Alles wat de bewoners nodig hebben in de buurt is aanwezig: cultuur en horeca in o.a. Podium Mozaiëk, een speeltuin op het Wachterliedplantsoen, onderwijs- en sociale voorzieningen in de Tijl Uilenspiegelstraat en sport en recreatie in het Erasmuspark en het Joos Banckersplantsoen. Aan het eind van de straat ligt het Erasmuspark, waar je zelfs een bootje kunt aanmeren. Ook het Westerpark en de Westergasfabriek zijn vlakbij. Voor het openbaar vervoer zit je hier goed; diverse trams en bussen brengen je naar alle hoeken van de stad. Ook station Sloterdijk ligt om de hoek. Met de auto ben je met 2 minuten op de ring A-10 West.
ALGEMEEN
Alle zich in deze aanbieding bevindende informatie is door ons met grote zorgvuldigheid samengesteld.
Echter met betrekking tot deze informatie aanvaarden wij geen enkele aansprakelijkheid, noch kan aan
de vermelde informatie enig recht worden ontleend.
Graag maken wij een vrijblijvende afspraak voor een bezichtiging met u!
===============================================================
***English Text***
This charming and light 3-room apartment is located on the second floor of a well-maintained apartment complex with a large storage room at the fourth floor.
Immediately around the corner is the renovated Bos & Lommerplein and the Erasmus Park. The apartment has wooden frames with double glazing at the front, a beautiful wooden floor, a bay window at the front and a balcony at the rear.
LAY OUT
Entrance/hall second floor with access to the rooms. At the front of the house is the spacious and very bright living room with a beautiful bay window. From the living room is access to a bedroom also located at the front. There are now double doors to this bedroom, which created a second bedroom. This isn’t visible on the photo’s yet, but it is on the floorplan.
Through the hall you also reach the bathroom with a shower and toilet. The closed kitchen with white kitchen unit is at the rear and has a washing machine connection. There is also a spacious bedroom. The balcony is accessible from both the kitchen and the main bedroom. On the fourth floor is the attic room of 9 m2 with a window and electricity, which is also suitable as a study.
PARTICULARITIES
- Living area is 54 m2
- 2 bedrooms
- Attic storage large 9 m2
- Double glazing with wooden frames at the front which were placed in 2021
- Suitable for maximum two people
- Unfurnished
- Balcony!
- Available for a maximum period of 2 years
RENT
The rent is € 2200, - per month, excluding gas, water and electricity, but including service costs.
The rental period is 2 years or shorter, tenant must provide a guarantee to the size of two months rent needs gross.
SURROUNDINGS
The apartment is located in a quiet street with a wide sidewalk and park in the Erasmus Park neighborhood (within the popular West district). The Jordaan is only 5 minutes by bike and within 10 minutes by bike you are in the center of Amsterdam. There is a wide range of shops in the vicinity. These include Coffee Company, a new Hema branch and three large supermarkets. Neighborhood renewal projects have led to the establishment of more tradespeople and cultural entrepreneurs in the district, and renovations are already being strongly promoted.
Everything the residents need is available in the area: culture and catering in, among others, Podium Mozaiëk, a playground at the Wachterliedplantsoen, educational and social facilities in the Tijl Uilenspiegelstraat and sports and recreation in the Erasmus Park and the Joos Banckersplantsoen. At the end of the street is the Erasmus Park, where you can even moor a boat. The Westerpark and the Westergasfabriek are also nearby. You are in the right place for public transport; various trams and buses take you to all corners of the city. Sloterdijk station is also around the corner. By car you are on the ring A-10 West in 2 minutes.
GENERAL
We have thoughtfully composed all the information gathered for this house. However we are not liable concerning any information given, but the listed information given can be borrowed. Further expansion possibilities are entirely buyers responsibility and subject to Gemeente/municipality approval
We would love to make an appointment to view this apartment with you!